Valutazione immobiliare indipendente, accurata e gratuita
L'Opinione di Caasa® per l'appartamento a Forlì in zona Musicisti / Grandi Italiani a 420.000 € (cod.656db64e)
Secondo Caasa, per l'appartamento a Forlì Musicisti / Grandi Italiani, la richiesta di 420.000 € è leggermente svantaggiosa rispetto agli annunci simili.
Analisi immobiliare
L'appartamento, situato nella zona OMI C1, è proposto in vendita a
420.000 € per una
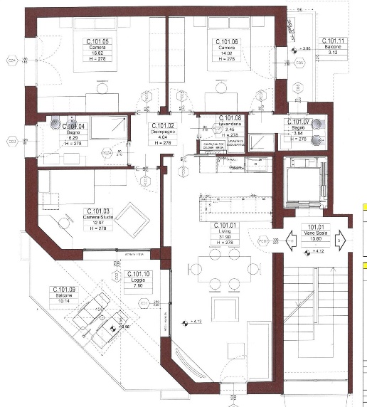
superficie commerciale di
157 m² e quindi ad un prezzo per metro quadrato pari a
2675 €/m²
.
Questo prezzo
è di poco superiore a quello stimato da Caasa per immobili in vendita simili per tipologia e caratteristiche e localizzati nella stessa zona OMI, che è compreso tra
2.306 €/m² e
2.513 €/m².
Grazie alla conoscenza con buona approssimazione della localizzazione dell'immobile, è stato possibile utilizzare come raffronto i dati medi elaborati esattamente nella zona OMI di appertenenza (PORTA SCHIAVONIA, VIALE V. VENETO, STAZIONE, MUSICISTI, GRANDI ITALIANI, BUSS...) per appartamenti (da 1.380 €/m² a 2.465 €/m²) e per quadrivani (da 1.380 €/m² a 2.635 €/m²). Anche se Caasa non è riuscita a determinare la classe energetica, ad affinare la stima hanno contribuito anche lo stato dell'immobile (di nuova costruzione) e la presenza di alcune caratteristiche significative come il posto auto o la disponibilità di una cantina. In virtù di queste considerazioni l'intervallo dei valori accettabili per l'offerta è relativamente limitato.
Mercato immobiliare a Forlì
Per quanto riguarda più in generale la città di Forlì, sono presenti al momento ben oltre mille annunci per
appartamenti in vendita (meno di un terzo dell'intera provincia)
e il maggior numero di annunci per questa tipologia sono relativi alla zona di Centro Storico, mentre la zona di Musicisti / Grandi Italiani risulta molto meno attiva considerando il numero di annunci presenti.
La richiesta media nella zona dove sorge l'appartamento (Musicisti / Grandi Italiani) è pari a
2.045 €/m², molto vicina ai valori della zona San Martino in Strada che sono i più alti della città .
Possiamo inoltre considerare che in tutta la città negli ultimi 6 mesi, i prezzi per appartamenti in vendita sono
in deciso aumento (+8,41%).
NOVITÀ Il risultato che vedi dipende dai dati che siamo riusciti ad estrarre dall'annuncio: ottieni una stima più accuranta di questo immobile, inserendo dati più precisi.
N.B. L'Opinione di Caasa® è un servizio sperimentale realizzato tramite tecniche di Intelligenza Artificiale, fornito senza alcuna garanzia di correttezza e completezza. Leggi il disclaimer o segnalaci un problema.
IMMAGINI
IN SINTESI
PROPOSTO DA:
KAPITAL IMMOBILIARE SRL
DESCRIZIONE
di nuova costruzione con posto auto con terrazza con cantina con balcone con termocondizionamento di nuova costruzione
ZONA GRANDI ITALIANI, nelle immediate vicinanze dal centro, proponiamo secondo gli ultimi standard di moderna costruzione: classe A4, appartamento composto da ampio soggiorno con cucina a vista con affaccio ad ampia loggia di 18 mq., disimpegno notte […]
