Valutazione immobiliare indipendente, accurata e gratuita
Appartamento in vendita a Forlì in zona Cà Ossi (cod.656933d4)
Caasa non ha sufficienti informazioni per commentare l'appartamento in vendita a Forlì in zona Cà Ossi - 656933d4.
Analisi immobiliare
I dati in posseso di Caasa per quest'immobile sono insufficienti, inaffidabili o contraddittori per proporre un'analisi attendibile.
Mercato immobiliare a Forlì
Per quanto riguarda più in generale la città di Forlì, sono presenti al momento ben oltre mille annunci per
appartamenti in vendita (meno di un terzo dell'intera provincia)
e il maggior numero di annunci per questa tipologia sono relativi alla zona di Centro Storico, mentre la zona di Cà Ossi risulta molto meno attiva considerando il numero di annunci presenti.
La richiesta media nella zona dove sorge l'appartamento (Cà Ossi pressi Via Campo degli Svizzeri) è pari a
2.095 €/m², molto vicina ai valori della zona San Martino in Strada che sono i più alti della città .
Per quanto riguarda la dinamica dei prezzi, negli ultimi 6 mesi i prezzi medi in tutta la città per appartamenti in vendita sono
in sostanziale aumento (+6,86%).
NOVITÀ Il risultato che vedi dipende dai dati che siamo riusciti ad estrarre dall'annuncio: ottieni una stima più accuranta di questo immobile, inserendo dati più precisi.
N.B. L'Opinione di Caasa® è un servizio sperimentale realizzato tramite tecniche di Intelligenza Artificiale, fornito senza alcuna garanzia di correttezza e completezza. Leggi il disclaimer o segnalaci un problema.
IMMAGINI
IN SINTESI
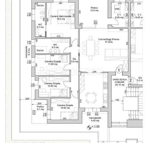
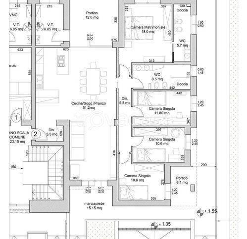
DESCRIZIONE
di nuova costruzione con posto auto con garage con giardino di nuova costruzione
Forli | via campo degli svizzeri | residenze belvedere6 aunita' | 7 localipiano terra | 500 mq giardino | 250 mq comm. Liimmobile:ingresso - soggiorno - cucina - sala da pranzo - porticato - lavanderia - bagno - disimpegno zona notte - camera singola - camera singola - camera francese - master room con bagno en suite.Servizi:500 mq di giardino privato - garage interrato - posto auto scoperto doppio all'intero della corteimmobile con impianti autonomi - capitolato premium - 5kw di fotovoltaico per unita' abitativa - batteria di accumul da 10kw-h - colonnina di ricarica auto

