Valutazione immobiliare indipendente, accurata e gratuita
Appartamento in vendita a Forlì in zona Villafranca di Forlì a 160.000 € (cod.6540484c)
Caasa non ha sufficienti informazioni per commentare l'appartamento a Forlì in zona Villafranca di Forlì - 6540484c.
Analisi immobiliare
I dati in posseso di Caasa per quest'immobile sono insufficienti, inaffidabili o contraddittori per proporre un'analisi attendibile.
Mercato immobiliare a Forlì
Per quanto riguarda più in generale la città di Forlì, sono presenti al momento ben oltre mille annunci per
appartamenti in vendita (meno di un terzo dell'intera provincia)
e il maggior numero di annunci per questa tipologia sono relativi alla zona di Centro Storico, mentre la zona di Villafranca di Forlì risulta molto meno attiva considerando il numero di annunci presenti.
La richiesta media nella zona dove sorge l'appartamento (Villafranca di Forlì) è pari a
1.660 €/m² che la rende la più economica della città .
Per quanto riguarda la dinamica dei prezzi, negli ultimi 6 mesi i prezzi medi in tutta la città per appartamenti in vendita sono
in sostanziale aumento (+6,09%).
NOVITÀ Il risultato che vedi dipende dai dati che siamo riusciti ad estrarre dall'annuncio: ottieni una stima più accuranta di questo immobile, inserendo dati più precisi.
N.B. L'Opinione di Caasa® è un servizio sperimentale realizzato tramite tecniche di Intelligenza Artificiale, fornito senza alcuna garanzia di correttezza e completezza. Leggi il disclaimer o segnalaci un problema.
IMMAGINI
IN SINTESI
PROPOSTO DA:
KAPITAL IMMOBILIARE SRL
DESCRIZIONE
di recente ristrutturazione di recente ristrutturazione con cucina abitabile di recente costruzione
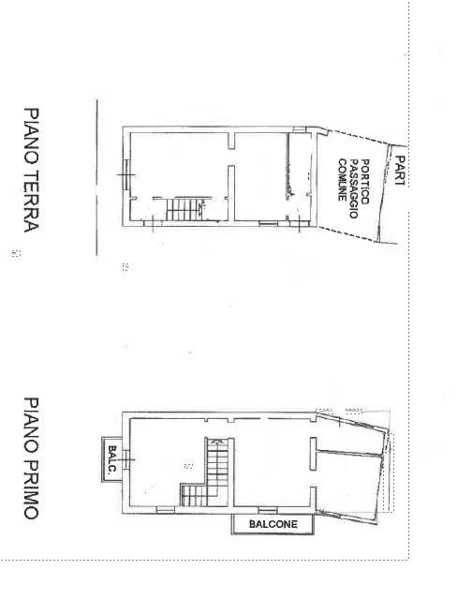
VILLAFRANCA, a 10 minuti da Forlì, Kapital Immobiliare propone appartamento indipendente completamente ristrutturato pari a nuovo nel 2024, composto al piano terra, di un ampia Sala, cucina abitabile, disimpegno e bagno, al piano primo due camere matrimoniale di cui una con bagno e ampia cabina armadio. La casa è comprensiva di nuovi impianti e fotovoltaico. Ape C. Rif. 4480. Euro 160.000 EPI: 177,96 kwh/m2 anno



