Valutazione immobiliare indipendente, accurata e gratuita
Appartamento in affitto a Forlì in zona Centro Storico a 850 € mese (cod.650930b1)
Caasa non ha sufficienti informazioni per commentare l'appartamento a Forlì in zona Centro Storico - 650930b1.
Analisi immobiliare
I dati in posseso di Caasa per quest'immobile sono insufficienti, inaffidabili o contraddittori per proporre un'analisi attendibile.
Mercato immobiliare a Forlì
Per quanto riguarda più in generale la città di Forlì, sono presenti al momento più di 300 annunci per
appartamenti in affitto (quasi il 40% dell'intera provincia)
e il maggior numero di annunci per questa tipologia sono relativi proprio alla zona di Centro Storico.
La richiesta media nella zona dove sorge l'appartamento (Centro Storico pressi Corso Giuseppe Mazzini) è pari a
9,7 €/m² mese e ne fa la più pregiata della città .
Relativamente alla dinamica dei prezzi, possiamo dire che negli ultimi 6 mesi i prezzi medi in tutta la città per appartamenti in affitto sono
in aumento (+4,84%).
NOVITÀ Il risultato che vedi dipende dai dati che siamo riusciti ad estrarre dall'annuncio: ottieni una stima più accuranta di questo immobile, inserendo dati più precisi.
N.B. L'Opinione di Caasa® è un servizio sperimentale realizzato tramite tecniche di Intelligenza Artificiale, fornito senza alcuna garanzia di correttezza e completezza. Leggi il disclaimer o segnalaci un problema.
IMMAGINI
IN SINTESI
PROPOSTO DA:
Solo Affitti - Agenzia di Pomezia 1
DESCRIZIONE
di recente ristrutturazione con termocondizionamento con arredamento con terrazza di recente ristrutturazione con balcone di nuova costruzione con ascensore con cantina
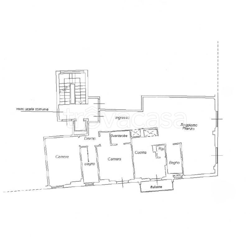
CORSO MAZZINI – DISPONIBILE DAL 1° GIUGNO 2026 – CONTRATTI TRANSITORI 10/18 MESI NO RESIDENZA – In grande contesto condominiale servito da ascensore, a pochi passi da Piazza Aurelio Saffi, proponiamo luminosissimo appartamento interamente ristrutturato. L’immobile è situato 5° piano con ottima distribuzione degli spazi interni, l’ingresso affaccia su luminoso soggiorno/pranzo, cucina semi abitabile completa di tutti gli elettrodomestici con piano cottura ad induzione e dotata di balcone e ripostiglio/dispensa, spaziosa nicchia a scomparsa ad uso lavanderia (lavatrice ed asciugatrice), bagno principale finestrato con comodo box doccia, disimpegno zona notte con camera padronale, seconda stanza con angolo guardaroba, bagno zona notte (anch’esso finestrato con grande doccia walk-in). L'immobile è interamente ristrutturato ed arredato con gusto e mobilio ricercato, tapparelle motorizzate, aria condizionata in tutti gli ambienti; riscaldamento e consumo di acqua centralizzati. Grande deposito ad uso rimessa bici al piano interrato. Annuncio rivolto a profili estremamente referenziati, non vengono valutati nuclei familiari.Quota condominiale comprensiva di riscaldamento e consumo di acqua e da versarsi contestualmente al versamento del canone di locazione. Energia elettrica e tassa di igiene ambientale resteranno intestati al locatore con rimborso mensile quantificato in circa € 200. Immobile legato a garanzia "AffittoSicuro". Per maggiori informazioni contattare l'agenzia allo 0543725759. Per sopralluogo o preventivo sui costi locativi è necessario certificarsi su piattaforma protetta https://www.soloaffittipay.it/referral/register?rpm=4727



