Valutazione immobiliare indipendente, accurata e gratuita
Appartamento in vendita a Cesenatico a 415.000 € (cod.64f95fcb)
Caasa non ha sufficienti informazioni per commentare l'appartamento in vendita a Cesenatico - 64f95fcb.
Analisi immobiliare
I dati in posseso di Caasa per quest'immobile sono insufficienti, inaffidabili o contraddittori per proporre un'analisi attendibile.
Mercato immobiliare a Cesenatico
Per quanto riguarda più in generale la città di Cesenatico, sono presenti al momento oltre 500 annunci per
appartamenti in vendita (quasi il 20% dell'intera provincia)
e il maggior numero di annunci per questa tipologia sono relativi alla zona di Valverde.
La dinamica dei prezzi in tutta la città mostra che negli ultimi 6 mesi, i prezzi per appartamenti in vendita sono
in deciso aumento (+8,44%).
NOVITÀ Il risultato che vedi dipende dai dati che siamo riusciti ad estrarre dall'annuncio: ottieni una stima più accuranta di questo immobile, inserendo dati più precisi.
N.B. L'Opinione di Caasa® è un servizio sperimentale realizzato tramite tecniche di Intelligenza Artificiale, fornito senza alcuna garanzia di correttezza e completezza. Leggi il disclaimer o segnalaci un problema.
IMMAGINI
IN SINTESI
PROPOSTO DA:
ROMAGNACASE -Agenzia Cesena Sant'Egidio
DESCRIZIONE
di recente ristrutturazione con terrazza con balcone di recente ristrutturazione di recente costruzione con ascensore da ristrutturare per vacanza
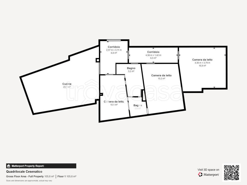
CESENATICO LEVANTE – AMPI SPAZI, VISTA SULLA VENA MAZZARINI In una delle zone più richieste di Cesenatico, con splendida vista sulla suggestiva Vena Mazzarini, proponiamo in vendita un appartamento ristrutturato di ampia metratura, pronto da vivere. L’immobile si trova al terzo piano di una palazzina servita da ascensore, in contesto centrale e ben curato. Con una superficie di circa 120 mq, l’appartamento si distingue per la luminosità e gli spazi generosi: Ingresso su ampio soggiorno open space, luminoso e dotato di uno spazioso balcone verandato; Cucina a vista con penisola, perfetta per chi ama cucinare in ampi spazi e godersi momenti di convivialità in famiglia; Tre camere da letto di grandi dimensioni di cui 2 matrimoniali e una doppia; Due bagni luminosi e funzionali di cui uno "en suite". Conclude la soluzione un ampio balcone nella camera padronale, con affaccio aperto e arioso su uno dei paesaggi più belli che Cesenatico ha da offrire. L’abitazione gode di ottima esposizione, garantendo luce naturale per tutta la giornata e ottima ventilazione. L’edificio, costruito negli anni ’60, è stato completamente ristrutturato nel corso degli anni e l'appartamento si presenta in ottimo stato. Ideale per chi cerca una prima casa spaziosa, ma anche perfetta come casa vacanze per famiglie che vogliono vivere il mare a pochi passi dal centro e dalla spiaggia. Non lasciarti sfuggire questa occasione unica in una delle zone più affascinanti della riviera!! Contattaci per maggiori informazioni o per fissare una visita. Andrea – 3335344442 o inviaci una mail a: a.calabro@romagnacase.it

