Valutazione immobiliare indipendente, accurata e gratuita
Casa indipendente in vendita a Cesenatico in zona Sala a 190.000 € (cod.64f55abb)
Caasa non ha sufficienti informazioni per commentare la casa indipendente a Cesenatico in zona Sala - 64f55abb.
Analisi immobiliare
I dati in posseso di Caasa per quest'immobile sono insufficienti, inaffidabili o contraddittori per proporre un'analisi attendibile.
Mercato immobiliare a Cesenatico
Per quanto riguarda più in generale la città di Cesenatico, sono presenti al momento oltre 500 annunci per
case indipendenti in vendita (quasi il 20% dell'intera provincia)
e il maggior numero di annunci per questa tipologia sono relativi proprio alla zona di Sala.
La richiesta media nella zona dove sorge la casa indipendente (Sala) è pari a
2.055 €/m², di poco superiore al valore della zona Villalta che è la più economica della città .
La dinamica dei prezzi in tutta la città mostra che negli ultimi 6 mesi, i prezzi per case indipendenti in vendita sono
in sostanziale aumento (+6,50%).
NOVITÀ Il risultato che vedi dipende dai dati che siamo riusciti ad estrarre dall'annuncio: ottieni una stima più accuranta di questo immobile, inserendo dati più precisi.
N.B. L'Opinione di Caasa® è un servizio sperimentale realizzato tramite tecniche di Intelligenza Artificiale, fornito senza alcuna garanzia di correttezza e completezza. Leggi il disclaimer o segnalaci un problema.
IMMAGINI
IN SINTESI
PROPOSTO DA:
international houses srl
DESCRIZIONE
di recente ristrutturazione con posto auto con garage con cantina di recente ristrutturazione da ristrutturare con cucina abitabile
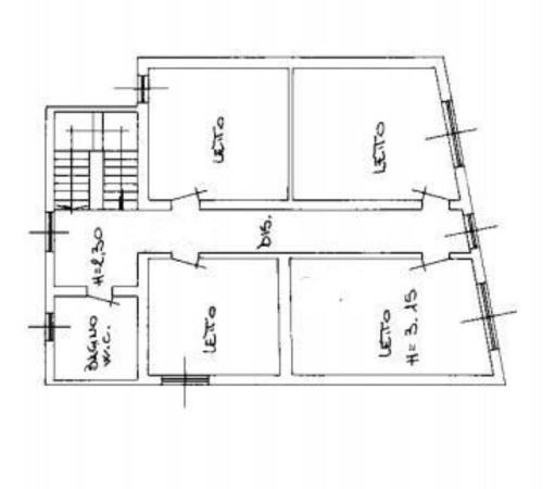
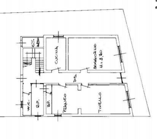
CESENATICO. Campagna di Cesenatico, si vende casa costruita nei primi anni '60. L'immobile si compone al piano terra di: ingresso indipendente, soggiorno, cucina abitabile, sala da pranzo, tinello e wc. Al piano primo abbiamo quattro camere da letto […]
