Valutazione immobiliare indipendente, accurata e gratuita

Locale commerciale in affitto a Cesenatico in zona Villalta a 1.400 € mese (cod.64dc2c94)

Caasa non ha sufficienti informazioni per commentare il locale commerciale a Cesenatico in zona Villalta - 64dc2c94.

Analisi immobiliare
I dati in posseso di Caasa per quest'immobile sono insufficienti, inaffidabili o contraddittori per proporre un'analisi attendibile.
Mercato immobiliare a Cesenatico
Per quanto riguarda più in generale la città di Cesenatico, sono presenti al momento meno di dieci annunci per locali commerciali in affitto (meno del 10% dell'intera provincia) e il maggior numero di annunci per questa tipologia sono relativi alla zona di Villamarina, ma anche la zona di Villalta è molto attiva dal punto di vista immobiliare.

Vedi altre informazioni direttamente su Mercato-Immobiliare.info

NOVITÀ Il risultato che vedi dipende dai dati che siamo riusciti ad estrarre dall'annuncio: ottieni una stima più accuranta di questo immobile, inserendo dati più precisi.

N.B. L'Opinione di Caasa® è un servizio sperimentale realizzato tramite tecniche di Intelligenza Artificiale, fornito senza alcuna garanzia di correttezza e completezza. Leggi il disclaimer o segnalaci un problema.

IMMAGINI

IN SINTESI

Prezzo:
1.400 € mese
Superficie:
220 m²
Prezzo al m²:
6,4/mese €/m²
Piano:
terra
Bagni:
n.d.
Classe energetica:
n.d.
Città:
Cesenatico (FC)
Zona OMI:
R2 (ZONA RURALE DI CESENATICO: CANNUCCETO, VILLALTA, BAGNAROLA, BORGO CAMPONE, SALA)
Indirizzo:
Pubblicato:
mer 17 settembre 2025

PROPOSTO DA:

Affiliato Tecnocasa: STUDIO MYRICAE S.R.L.

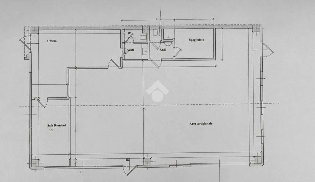
DESCRIZIONE

CESENATICO Proponiamo in locazione capannone artigianale situato nella zona artigianale di Villalta a Cesenatico. L'immobile è posto al piano terra ed ha una superficie di 220 mq complessivi. È composto dalla parte principale dedicata al laboratorio […]

  • trovacasa.net