Valutazione immobiliare indipendente, accurata e gratuita
Appartamento in vendita a Cesena in zona Cesuola a 595.000 € (cod.654c938a)
Caasa non ha sufficienti informazioni per commentare l'appartamento in vendita a Cesena in zona Cesuola - 654c938a.
Analisi immobiliare
I dati in posseso di Caasa per quest'immobile sono insufficienti, inaffidabili o contraddittori per proporre un'analisi attendibile.
Mercato immobiliare a Cesena
Per quanto riguarda più in generale la città di Cesena, sono presenti al momento ben oltre mille annunci per
appartamenti in vendita (meno di un terzo dell'intera provincia)
e il maggior numero di annunci per questa tipologia sono relativi alla zona di Centro Storico, mentre la zona di Cesuola risulta molto meno attiva considerando il numero di annunci presenti.
La richiesta media nella zona dove sorge l'appartamento (Cesuola pressi Viale Osservanza) è pari a
2.550 €/m², molto vicina ai valori della zona Fiorenzuola che sono i più alti della città .
Possiamo inoltre considerare che in tutta la città negli ultimi 6 mesi, i prezzi per appartamenti in vendita sono
sostanzialmente stabili (+0,99%).
NOVITÀ Il risultato che vedi dipende dai dati che siamo riusciti ad estrarre dall'annuncio: ottieni una stima più accuranta di questo immobile, inserendo dati più precisi.
N.B. L'Opinione di Caasa® è un servizio sperimentale realizzato tramite tecniche di Intelligenza Artificiale, fornito senza alcuna garanzia di correttezza e completezza. Leggi il disclaimer o segnalaci un problema.
IMMAGINI
IN SINTESI
PROPOSTO DA:
AGENZIA IMMOBILIARE LOMBARDINI DI LOMBARDINI PIERO
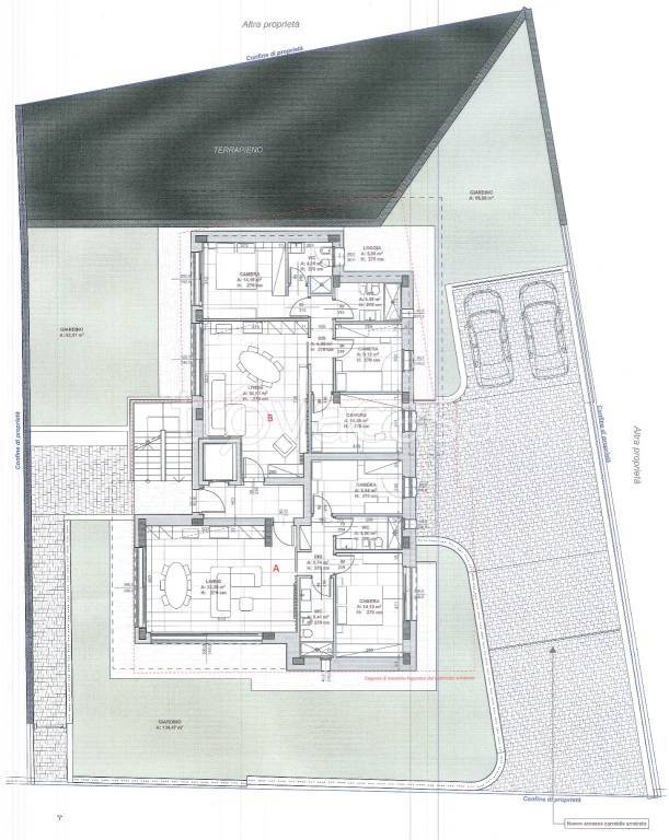
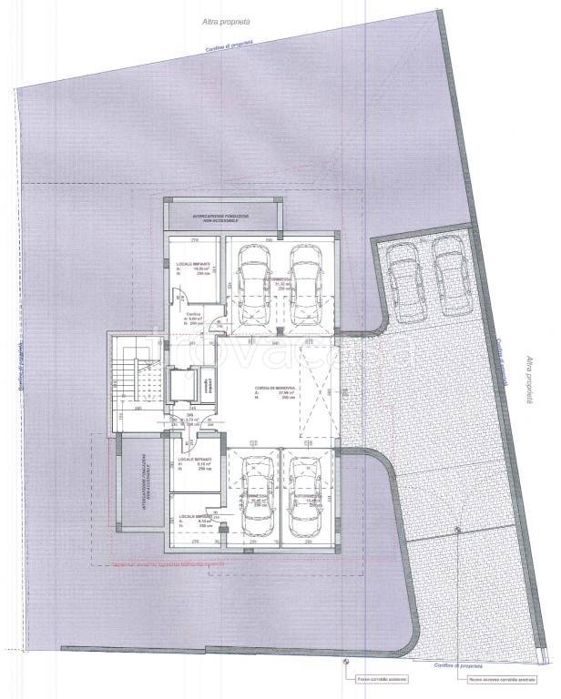
DESCRIZIONE
di nuova costruzione con posto auto con garage con giardino con cantina con terrazza con termocondizionamento di nuova costruzione con angolo cottura
Vendita in esclusiva a Cesena, zona Monte Viale Dei Pini 208, a ridosso del centro città, proponiamo un esclusivo appartamento di pregio di 150 mq commerciali, situato al piano terra di un elegante e moderna Villa Trifamiliare di nuova realizzazione, in un contesto signorile e riservato. Questa nuova costruzione, dotata di certificata CASA CLIMA, offre un ambiente moderno e raffinato, ideale per chi cerca comfort e qualità. L'appartamento è composto da 4 vani, tra cui 3 camere da letto spaziose e luminose, perfette per accogliere anche famiglie numerose, 2 bagni, finemente arredati, garantiscono funzionalità e stile, ampio soggiorno con cucina con angolo cottura, perfetta per preparare deliziosi pasti in un ambiente conviviale, collegato con l'esterno da ampia vetrata panoramica su loggia e giardino. Tra i punti di forza di questa proprietà, troviamo il riscaldamento a pavimento e il sistema di climatizzazione, che assicurano un clima ideale in ogni stagione. A completare l'offerta, una loggia di 7 mq al piano terra e un giardino di 135 mq, dove potersi rilassare all'aria aperta. La comodità non finisce qui: l'appartamento dispone di un box/garage di 18 mq e di un posto auto di 13 mq al piano seminterrato, oltre a una cantina di 11 mq, offrendo ampio spazio per riporre oggetti e veicoli. Questa è un'opportunità imperdibile per chi desidera vivere in una zona centrale, circondato da tutti i servizi e dal verde oltre alle comodità che la città di Cesena ha da offrire. Non perdere l'occasione di visitare questo splendido appartamento, dove eleganza e funzionalità si incontrano. Prenota subito un appuntamento in ufficio con il nostro responsabile del progetto Andrea Arienti 3476381083 per visionare i dettagli dell'immobile. AGENZIA LOMBARDINI CESENA VIA ALBERTINI 26. Rif. Soluzione B

