Valutazione immobiliare indipendente, accurata e gratuita
Casa indipendente in vendita a Cesena in zona Calabrina a 430.000 € (cod.6544146d)
Caasa non ha sufficienti informazioni per commentare la casa indipendente a Cesena in zona Calabrina - 6544146d.
Analisi immobiliare
I dati in posseso di Caasa per quest'immobile sono insufficienti, inaffidabili o contraddittori per proporre un'analisi attendibile.
Mercato immobiliare a Cesena
Per quanto riguarda più in generale la città di Cesena, sono presenti al momento ben oltre mille annunci per
case indipendenti in vendita (meno di un terzo dell'intera provincia)
e il maggior numero di annunci per questa tipologia sono relativi alla zona di Centro Storico, mentre la zona di Calabrina risulta molto meno attiva considerando il numero di annunci presenti.
La richiesta media nella zona dove sorge la casa indipendente (Calabrina pressi Via Ferrara) è pari a
1.840 €/m², molto vicina ai valori della zona Fiorenzuola che sono i più alti della città .
Relativamente alla dinamica dei prezzi, possiamo dire che negli ultimi 6 mesi i prezzi medi in tutta la città per case indipendenti in vendita sono
in aumento (+3,75%).
NOVITÀ Il risultato che vedi dipende dai dati che siamo riusciti ad estrarre dall'annuncio: ottieni una stima più accuranta di questo immobile, inserendo dati più precisi.
N.B. L'Opinione di Caasa® è un servizio sperimentale realizzato tramite tecniche di Intelligenza Artificiale, fornito senza alcuna garanzia di correttezza e completezza. Leggi il disclaimer o segnalaci un problema.
IMMAGINI
IN SINTESI
PROPOSTO DA:
Immobiliare Romagna Srls
Via Della Valle 232, Via Della Valle 232, 47522, Cesena (FC)
DESCRIZIONE
di nuova costruzione con posto auto con garage con giardino con cantina di nuova costruzione
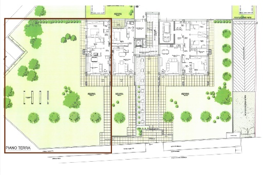
APPARTAMENTO AL PIANO TERRA IN COSTRUZIONE CON AMPIO GIARDINO – CLASSE ENERGETICA ELEVATA In zona residenziale tranquilla, proponiamo appartamento di nuova costruzione al piano terra, con ingresso indipendente e ampio giardino privato di oltre 600 mq, ideale per chi desidera comfort, privacy e spazi esterni generosi. L’immobile, attualmente in fase di costruzione, è caratterizzato da finiture moderne, soluzioni tecnologiche all’avanguardia ed elevati standard energetici ed è così composto: ✅ Ingresso indipendente ✅Zona soggiorno e cucina a vista, con accesso diretto al portico ✅ Due camere da letto, di cui: 1 matrimoniale e 1 singola, tutte dotate di porte-finestre con accesso diretto all’esterno ✅ Due bagni completi, di cui uno dedicato alla camera padronale ✅ Possibilità di acquistare il garage al piano interrato Il giardino privato di oltre 600 mq circonda l’abitazione, offrendo spazi ideali per vivere l’esterno, creare zone relax, area pranzo o spazi verdi personalizzati. Il fabbricato sarà completato con impianti di ultima generazione, massima attenzione all’efficienza energetica e al comfort abitativo, con classe energetica di alto livello. Consegna prevista: primavera 2027 Possibilità di personalizzazione degli interni in base allo stato di avanzamento lavori Possibilità di acquistare servizi aggiuntivi, quali posti auto esterni e cantine Soluzione ideale per famiglie o per chi cerca un appartamento moderno al piano terra, con ampi spazi esterni e dotazioni complete. Contattaci per maggiori informazioni, capitolato e per fissare un appuntamento. Alina Pantiru +39 320 0525653 a.pantiru@immobiliareromagna.casa


