Valutazione immobiliare indipendente, accurata e gratuita
Ufficio in vendita a Cesena in zona Centro Storico a 195.000 € (cod.6543a7f7)
Caasa non ha sufficienti informazioni per commentare l'ufficio in vendita a Cesena in zona Centro Storico - 6543a7f7.
Analisi immobiliare
I dati in posseso di Caasa per quest'immobile sono insufficienti, inaffidabili o contraddittori per proporre un'analisi attendibile.
Mercato immobiliare a Cesena
Per quanto riguarda più in generale la città di Cesena, sono presenti al momento quasi 500 annunci per
uffici in vendita (quasi la metà dell'intera provincia)
e il maggior numero di annunci per questa tipologia sono relativi proprio alla zona di Centro Storico.
La richiesta media nella zona dove sorge l'ufficio (Centro Storico) è pari a
2.120 €/m², molto vicina ai valori della zona Fiorenzuola che sono i più alti della città .
La dinamica dei prezzi in tutta la città mostra che negli ultimi 6 mesi, i prezzi per uffici in vendita sono
in aumento (+3,39%).
NOVITÀ Il risultato che vedi dipende dai dati che siamo riusciti ad estrarre dall'annuncio: ottieni una stima più accuranta di questo immobile, inserendo dati più precisi.
N.B. L'Opinione di Caasa® è un servizio sperimentale realizzato tramite tecniche di Intelligenza Artificiale, fornito senza alcuna garanzia di correttezza e completezza. Leggi il disclaimer o segnalaci un problema.
IMMAGINI
IN SINTESI
DESCRIZIONE
con terrazza con cantina con balcone con termocondizionamento con ascensore
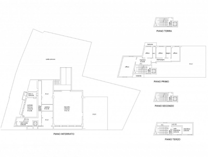
Proponiamo in vendita un ufficio situato a Cesena, in Via Federico Comandini, in una zona comoda, ben servita e facilmente accessibile. L'immobile si sviluppa interamente al piano primo ed è composto da quattro vani ad uso ufficio, ingresso disimpegno due bagni una veranda e un balcone, offrendo spazi funzionali e ben organizzati per attività professionali. Completano la proprietà una cantina e un deposito carrabile comune, che ne aumentano la fruibilità e il comfort operativo. La posizione strategica, a breve distanza dal centro cittadino e con ottimi collegamenti alla viabilità principale, rende questa soluzione particolarmente interessante per chi desidera operare in un contesto urbano dinamico e ben collegato

