Valutazione immobiliare indipendente, accurata e gratuita
Appartamento in vendita a Cesena in zona Barriera a 489.000 € (cod.65404868)
Caasa non ha sufficienti informazioni per commentare l'appartamento in vendita a Cesena in zona Barriera - 65404868.
Analisi immobiliare
I dati in posseso di Caasa per quest'immobile sono insufficienti, inaffidabili o contraddittori per proporre un'analisi attendibile.
Mercato immobiliare a Cesena
Per quanto riguarda più in generale la città di Cesena, sono presenti al momento ben oltre mille annunci per
appartamenti in vendita (meno di un terzo dell'intera provincia)
e il maggior numero di annunci per questa tipologia sono relativi alla zona di Centro Storico, mentre la zona di Barriera risulta molto meno attiva considerando il numero di annunci presenti.
La richiesta media nella zona dove sorge l'appartamento (Barriera pressi Via Mura Barriera Levante) è pari a
2.740 €/m², molto vicina ai valori della zona Fiorenzuola che sono i più alti della città .
Per quanto riguarda la dinamica dei prezzi, negli ultimi 6 mesi i prezzi medi in tutta la città per appartamenti in vendita sono
in leggero aumento (+2,40%).
NOVITÀ Il risultato che vedi dipende dai dati che siamo riusciti ad estrarre dall'annuncio: ottieni una stima più accuranta di questo immobile, inserendo dati più precisi.
N.B. L'Opinione di Caasa® è un servizio sperimentale realizzato tramite tecniche di Intelligenza Artificiale, fornito senza alcuna garanzia di correttezza e completezza. Leggi il disclaimer o segnalaci un problema.
IMMAGINI
IN SINTESI
PROPOSTO DA:
IMMOBILI CAPPELLI & IMMOBILI CAPPELLI MARE
DESCRIZIONE
di nuova costruzione con posto auto con garage con giardino con terrazza con termocondizionamento di nuova costruzione con ascensore
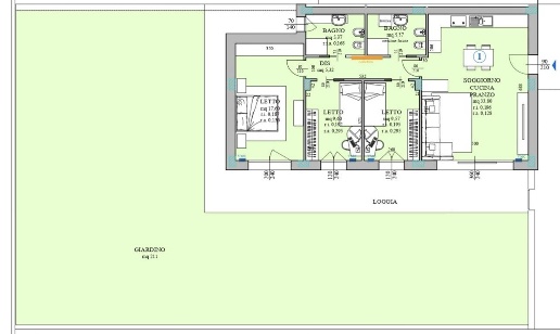
CESENA SAN MAURO IN VALLE nuovo complesso residenziale di prossima realizzazione a poca distanza dal centro in un'area molto servita. Appartamenti con ottime finiture ad alta efficienza energetica al piano terra con giardino, oppure al piano primo e secondo con loggia di 40 mq, serviti da ascensore, oppure attico con terrazzo panoramico di mq 140. Le abitazioni sono realizzate in opera con un'altissima efficienza sismica ed energetica (classe A) con tetto in legno ventilato, riscaldamento a pavimento, pannelli fotovoltaici 4 kw per ogni appartamento, ventilazione meccanica controllata, impianto di climatizzazione e d'allarme installato, infissi esterni in PVC con vetri a taglio termico e tapparelle elettriche, impianto di aspirazione centralizzata e cassetta di sicurezza. Possibilità di personalizzazione degli interni nelle finiture e negli spazi. Ogni unità abitativa dispone di garage e posti auto. Ideale per famiglie che ricercano ampi spazi interni ed esterni abbinati all'efficienza e al comfort che offrono le costruzioni nuove. Fine lavori gennaio 2026. APPARTAMENTO AL PIANO TERRA CON GIARDINO di 223mq. Gli ampi spazi interni ed esterni permettono un'ottima vivibilità. Ingresso su ampio soggiorno con cucina a vista, un comodo disimpegno conduce alla zona notte dove troviamo 3 camere da letto e 2 bagni. Garage. Contattaci al 0547481870 oppure rivolgiti alla nostra Agenzia di Cesena in via Mura Barriera Levante n. 1 per scoprire la tua nuova casa. Vuoi davvero arrivare prima degli altri? Alcuni immobili selezionati vengono spoilerati in anteprima assoluta fino a 30 giorni prima della pubblicazione sui portali immobiliari. Solo chi ci segue sui social ha accesso a queste opportunità riservate. Non rischiare di perderti la casa giusta al momento giusto. Classe Energetica: A


