Valutazione immobiliare indipendente, accurata e gratuita
L'Opinione di Caasa® per l'appartamento in vendita a Cesena in zona Torre del Moro a 347.000 € (cod.65403528)
Secondo Caasa, per l'appartamento a Cesena in zona Torre del Moro, la richiesta di 347.000 € è leggermente vantaggiosa rispetto agli annunci simili.
Analisi immobiliare
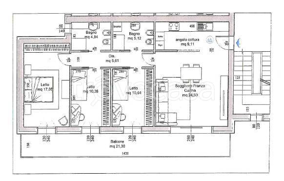
L'appartamento, situato nella zona OMI D4, è proposto in vendita a
347.000 € per una
superficie commerciale di
136 m² e quindi ad un prezzo per metro quadrato pari a
2551 €/m²
.
Questo valore
è un po' più basso di quello stimato da Caasa per immobili in vendita simili per tipologia e caratteristiche e localizzati nella stessa zona OMI, che è compreso tra
2.723 €/m² e
2.892 €/m².
Grazie alla conoscenza con buona approssimazione della localizzazione dell'immobile, è stato possibile utilizzare come raffronto i dati medi elaborati esattamente nella zona OMI di appertenenza (EX MERCATO ORTOFRUTTICOLO, MARTORANO, PIEVESESTINA, DISMANO, TORRE DEL MORO, ...) per appartamenti (da 2.070 €/m² a 3.175 €/m²) e per quadrivani (da 2.010 €/m² a 3.055 €/m²). Anche se Caasa non è riuscita a determinare la classe energetica, ad affinare la stima hanno contribuito anche lo stato dell'immobile (di nuova costruzione) e la presenza di alcune caratteristiche significative come il garage. Per i motivi esposti l'intervallo dei valori accettabili per l'offerta è relativamente limitato.
Mercato immobiliare a Cesena
Per quanto riguarda più in generale la città di Cesena, sono presenti al momento ben oltre mille annunci per
appartamenti in vendita (meno di un terzo dell'intera provincia)
e il maggior numero di annunci per questa tipologia sono relativi alla zona di Centro Storico, mentre la zona di Torre del Moro risulta molto meno attiva considerando il numero di annunci presenti.
La richiesta media nella zona dove sorge l'appartamento (Torre del Moro) è pari a
2.670 €/m², molto vicina ai valori della zona Fiorenzuola che sono i più alti della città .
Per quanto riguarda la dinamica dei prezzi, negli ultimi 6 mesi i prezzi medi in tutta la città per appartamenti in vendita sono
sostanzialmente stabili (+1,04%).
NOVITÀ Il risultato che vedi dipende dai dati che siamo riusciti ad estrarre dall'annuncio: ottieni una stima più accuranta di questo immobile, inserendo dati più precisi.
N.B. L'Opinione di Caasa® è un servizio sperimentale realizzato tramite tecniche di Intelligenza Artificiale, fornito senza alcuna garanzia di correttezza e completezza. Leggi il disclaimer o segnalaci un problema.
IMMAGINI
IN SINTESI
PROPOSTO DA:
Romagna Case
DESCRIZIONE
di nuova costruzione con posto auto con garage con giardino con terrazza con termocondizionamento di nuova costruzione
CESENA – TORRE DEL MORO RomagnaCase è lieta di proporre ai propri clienti Nuovo innovativo complesso residenziale in pieno centro urbano a Cesena. L’ubicazione degli appartamenti, l’alta prestazione energetica, e il prezzo contenuto rendono queste soluzioni veramente interessanti. Disponibili diverse tipologie create su misura per ogni vostra esigenza. Appartamento al Piano Primo con ingresso nella zona giorno composta da cucina openspace e soggiorno di circa 35 mq. Mentre nella zona notte troviamo una camera matrimoniale, due camere singole e due bagni. Completa la soluzione garage di facile accesso. Disponibile in agenzia capitolato intero della costruzione. Ogni soluzione dispone di pannelli fotovoltaici, sistema meccanizzato di riscaldamento e raffrescamento, tetto in legno ventilato e aspirazione centralizzata. Per qualsiasi informazione o per fissare una visita sul posto chiama Chiara: 3404976163 oppure manda una email a c.petrini@romagnacase.it e verrai ricontatto appena possibile

