Valutazione immobiliare indipendente, accurata e gratuita
Casa indipendente in vendita a Cesena in zona Fiorenzuola a 508.000 € (cod.64e49d40)
Caasa non ha sufficienti informazioni per commentare la casa indipendente a Cesena in zona Fiorenzuola - 64e49d40.
Analisi immobiliare
I dati in posseso di Caasa per quest'immobile sono insufficienti, inaffidabili o contraddittori per proporre un'analisi attendibile.
Mercato immobiliare a Cesena
Per quanto riguarda più in generale la città di Cesena, sono presenti al momento ben oltre mille annunci per
case indipendenti in vendita (meno di un terzo dell'intera provincia)
e il maggior numero di annunci per questa tipologia sono relativi alla zona di Centro Storico, mentre nella zona di Fiorenzuola è presente un numero significativamente inferiore di annunci.
La richiesta media nella zona dove sorge la casa indipendente (Fiorenzuola pressi Case Finali) è pari a
2.660 €/m² e ne fa la più pregiata della città .
Per quanto riguarda la dinamica dei prezzi, negli ultimi 6 mesi i prezzi medi in tutta la città per case indipendenti in vendita sono
sostanzialmente stabili (+0,96%).
NOVITÀ Il risultato che vedi dipende dai dati che siamo riusciti ad estrarre dall'annuncio: ottieni una stima più accuranta di questo immobile, inserendo dati più precisi.
N.B. L'Opinione di Caasa® è un servizio sperimentale realizzato tramite tecniche di Intelligenza Artificiale, fornito senza alcuna garanzia di correttezza e completezza. Leggi il disclaimer o segnalaci un problema.
IMMAGINI
IN SINTESI
PROPOSTO DA:
ROMAGNACASE -Agenzia Cesena Sant'Egidio
DESCRIZIONE
di nuova costruzione con posto auto con garage con giardino con balcone con termocondizionamento di nuova costruzione
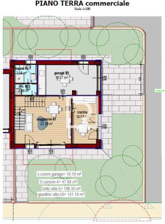
CESENA - CASE FINALI APPARTAMENTI E VILLETTE A SCHIERA DI NUOVA COSTRUZIONE Gli immobili, attualmente in fase di costruzione, rappresentano il perfetto incontro tra innovazione architettonica e funzionalità, assicurando elevati standard di qualità e design contemporaneo. Situato in una posizione privilegiata, offre facile accesso a tutte le principali comodità e servizi della città, rendendolo una scelta ideale sia per famiglie sia per professionisti. La villetta è così composta: al piano terra troviamo garage, soggiorno, cucina ed un bagno. Il tutto circondato su tre lati da un giardino di circa 131mq. Il piano primo è composto da tre camere, due bagni e due balconi. Il lotto sorge adiacente ad un grande parco, il futuro complesso residenziale sarà composto da 9 villette a schiera e 6 appartamenti, di cui due con giardino. Essendo ancora in fase di realizzazione, le pareti divisorie potranno essere disposte come da richiesta dell'acquirente, se non ancora predisposte al momento della promessa d'acquisto. Gli immobili verranno consegnati completi, compresi di lavabo, bidet, wc e piatti doccia ove previsti, ad esclusione di ogni tipo di arredamento ed accessorio. Gli impianti di riscaldamento saranno autonomi a pompa di calore, senza alcuna fornitura di gas naturale. Il sistema di erogazione del calore sarà a pavimento, con termostati installati in quasi tutti gli ambienti. Gli impianti di raffreddamento saranno completamente integrati a quelli di riscaldamento grazie alla pompa di calore con erogazione a pavimento. E' previsto un impianto fotovoltaico da 6 kw per ciascuna unità abitativa, il tutto garantirà la classificazione energetica di tipo A. La scelta dei pavimenti e dei rivestimenti sarà a cura della parte acquirente, gli infissi esterni saranno in PVC di colore bianco e la porta blindata sarà in classe di sicurezza 3. - SI VALUTANO PERMUTE - - PERSONALIZZABILI - IMMERSI NEL VERDE - GIARDINO DI PROPRIETA' - INDIPENDENTE Non perdete l'occasione di essere parte di questa nuova era edilizia: contattat[…]


