Valutazione immobiliare indipendente, accurata e gratuita
L'Opinione di Caasa® per l'appartamento in vendita a Cesena in zona Torre del Moro a 465.000 € (cod.648e27db)
Secondo Caasa, per l'appartamento a Cesena in zona Torre del Moro, la richiesta di 465.000 € è equilibrata rispetto agli annunci simili.
Analisi immobiliare
L'appartamento, situato nella zona OMI C2, è proposto in vendita a
465.000 € per una
superficie commerciale di
155 m² e quindi ad un prezzo per metro quadrato pari a
3000 €/m²
.
Tale valore
è molto vicino a quello stimato da Caasa per immobili in vendita simili per tipologia e caratteristiche e localizzati nella stessa zona OMI, che è compreso tra
2.822 €/m² e
3.022 €/m².
Grazie alla conoscenza con buona approssimazione della localizzazione dell'immobile, è stato possibile utilizzare come raffronto i dati medi elaborati esattamente nella zona OMI di appertenenza (ZONA IPPODROMO, EX ZUCCHERIFICIO, SAN ROCCO, SAN MAURO IN VALLE, VILLA ARCO, ...) per appartamenti (da 2.060 €/m² a 3.155 €/m²) e per uffici (da 1.335 €/m² a 2.845 €/m²). Anche se Caasa non è riuscita a determinare la classe energetica, ad affinare la stima hanno contribuito anche lo stato dell'immobile (di nuova costruzione) e la presenza di alcune caratteristiche significative come il posto auto. In virtù di queste considerazioni i valori accettabili per l'offerta costituiscono un intervallo relativamente limitato.
Mercato immobiliare a Cesena
Per quanto riguarda più in generale la città di Cesena, sono presenti al momento ben oltre mille annunci per
appartamenti in vendita (meno di un terzo dell'intera provincia)
e il maggior numero di annunci per questa tipologia sono relativi alla zona di Centro Storico, mentre la zona di Torre del Moro risulta molto meno attiva considerando il numero di annunci presenti.
La richiesta media nella zona dove sorge l'appartamento (Torre del Moro) è pari a
2.675 €/m², molto vicina ai valori della zona Fiorenzuola che sono i più alti della città .
La dinamica dei prezzi in tutta la città mostra che negli ultimi 6 mesi, i prezzi per appartamenti in vendita sono
sostanzialmente stabili (+1,04%).
NOVITÀ Il risultato che vedi dipende dai dati che siamo riusciti ad estrarre dall'annuncio: ottieni una stima più accuranta di questo immobile, inserendo dati più precisi.
N.B. L'Opinione di Caasa® è un servizio sperimentale realizzato tramite tecniche di Intelligenza Artificiale, fornito senza alcuna garanzia di correttezza e completezza. Leggi il disclaimer o segnalaci un problema.
IMMAGINI
IN SINTESI
PROPOSTO DA:
Romagnacase - Agenzia Cesena Torre Del Moro
DESCRIZIONE
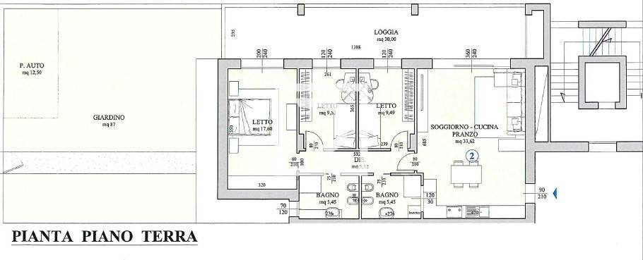
di nuova costruzione con posto auto con giardino con terrazza con termocondizionamento di nuova costruzione
SAN NAURO IN VALLE - CESENA Romagna Case è lieta di proporre alla propria selezionata clientela, un nuovo complesso residenziale immerso nel verde in una delle zone più esclusive di Cesena. L'ubicazione delle unità immobiliari, l'alta prestazione energetica, e il prezzo concorrenziale, rendono questa soluzione abitativa ECCEZIONALMENTE interessante. Dalla corte privata accediamo direttamente nell'ampia zona giorno composta da cucina open space e living di circa 35 mq; mentre la zona notte si compone di tre camere da letto tutte con affaccio su loggia esclusiva di 30 mq. Inoltre a servizio dell'appartamento sono presenti 2 bagni e disimpegno. Completano la soluzione l'ampio giardino con posto auto privato e il box auto, riscaldamento a pavimento con pompa di calore e pannelli fotovoltaici. Disponibile presso il nostro ufficio il capitolato descrittivo delle opere. CONSEGNA IMMOBILE PREVISTA IN PRIMAVERA 2026 Per INFO contattare: Cristian 347-7122462 oppure inviare mail a: c.nicolini@romagnacase.it

