Valutazione immobiliare indipendente, accurata e gratuita
Casa indipendente in affitto a Cesena in zona Macerone a 750 € mese (cod.65270f98)
Caasa non ha sufficienti informazioni per commentare la casa indipendente a Cesena in zona Macerone - 65270f98.
Analisi immobiliare
I dati in posseso di Caasa per quest'immobile sono insufficienti, inaffidabili o contraddittori per proporre un'analisi attendibile.
Mercato immobiliare a Cesena
Per quanto riguarda più in generale la città di Cesena, sono presenti al momento circa cento annunci per
case indipendenti in affitto (meno di un terzo dell'intera provincia)
e il maggior numero di annunci per questa tipologia sono relativi alla zona di Centro Storico, mentre la zona di Macerone risulta molto meno attiva considerando il numero di annunci presenti.
Per quanto riguarda la dinamica dei prezzi, negli ultimi 6 mesi i prezzi medi in tutta la città per case indipendenti in affitto sono
in forte calo (-14,31%).
NOVITÀ Il risultato che vedi dipende dai dati che siamo riusciti ad estrarre dall'annuncio: ottieni una stima più accuranta di questo immobile, inserendo dati più precisi.
N.B. L'Opinione di Caasa® è un servizio sperimentale realizzato tramite tecniche di Intelligenza Artificiale, fornito senza alcuna garanzia di correttezza e completezza. Leggi il disclaimer o segnalaci un problema.
IMMAGINI
IN SINTESI
PROPOSTO DA:
Studio Centro di Andrea Lucchi
Via Cesare Battisti 29, Cesena (FC)
Verificata da Caasa®
DESCRIZIONE
di recente ristrutturazione con posto auto con arredamento di recente ristrutturazione con cucina abitabile con giardino
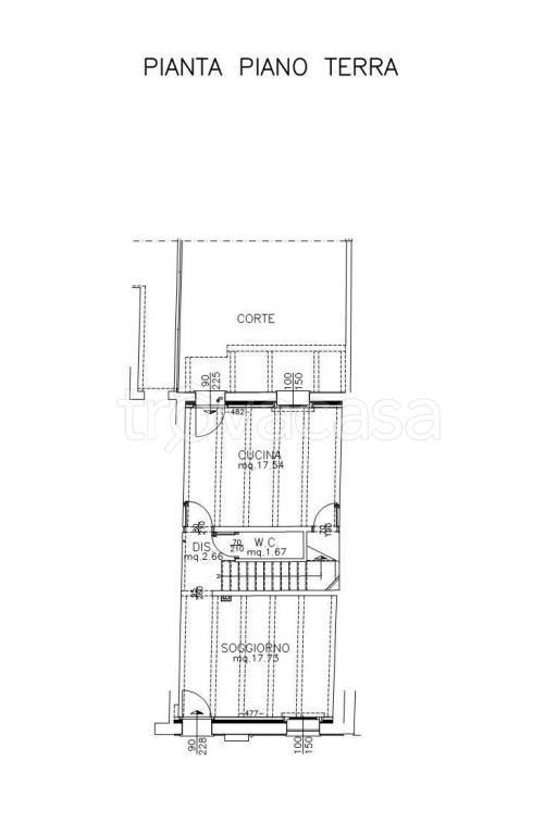
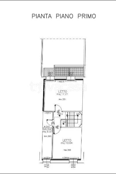
Studio Centro Cesena propone in affitto: nel centro di Macerone casa a schiera ristrutturata completamente in classe A4. Sistema fotovoltaico ed elettrico scollegata dal gas, consumi bassissimi. La casa è semiarredata e disposta come segue : Piano Terra : Soggiorno, cucina abitabile, bagno e corte privata Piano Primo : Due camere da letto luminosissime e bagno Euro 750 non trattabili con fidejussione di 1 anno o 18 mesi di deposito cauzionale . Presenti in strada e a pochi metri posti auto comunali liberi

