Valutazione immobiliare indipendente, accurata e gratuita
Locale di sgombero in vendita a Ferrara in zona Porotto / Cassana a 137.250 € (cod.64f3949a)
Caasa non ha sufficienti informazioni per commentare il locale di sgombero a Ferrara Porotto / Cassana - 64f3949a.
Analisi immobiliare
I dati in posseso di Caasa per quest'immobile sono insufficienti, inaffidabili o contraddittori per proporre un'analisi attendibile.
Mercato immobiliare a Ferrara
Per quanto riguarda più in generale la città di Ferrara, sono presenti al momento più di 150 annunci per
locali di sgombero in vendita (meno di un terzo dell'intera provincia)
e il maggior numero di annunci per questa tipologia sono relativi alla zona di Centro Storico, ma anche la zona di Porotto / Cassana è molto attiva dal punto di vista immobiliare.
Vedi altre informazioni direttamente su
Mercato-Immobiliare.info
NOVITÀ Il risultato che vedi dipende dai dati che siamo riusciti ad estrarre dall'annuncio: ottieni una stima più accuranta di questo immobile, inserendo dati più precisi.
N.B. L'Opinione di Caasa® è un servizio sperimentale realizzato tramite tecniche di Intelligenza Artificiale, fornito senza alcuna garanzia di correttezza e completezza. Leggi il disclaimer o segnalaci un problema.
IMMAGINI
IN SINTESI
PROPOSTO DA:
Studio Canova
DESCRIZIONE
con cantina con termocondizionamento con riscaldamento autonomo in asta giudiziaria
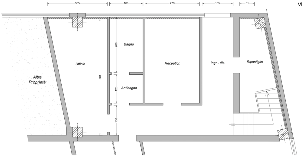
NUOVA PROPOSTA IMMOBILE LIBERO L'immobile si trova nel comune di Ferrara, località Cassana,via Cesare Diana. Trattasi di un capannone costituito da una zona uffici a due piani fuori terra ed una zona "produzione". La zona uffici di 140mq è composta al piano terra da ingresso, due uffici, servizi, ripostiglio e disimpegno; al piano primo troviamo due uffici, servizi, ripostiglio e disimpegno. Nella parte retrostante si sviluppano due ampi locali dedicati alla produzione/vendita di 550mq, un locale officina, un locale archivio, disimpegno ed una zona soppalcata di 70mq ad uso magazzino. Completa il tutto un'ampia area cortiliva circostante. L'immobile è situato in una zona molto tranquilla, permette di godere di tutti i comfort e i servizi offerti dalla zona circostante. Per te la possibilità di avere un preventivo per il mutuo a condizioni vantaggiose con i nostri partner. Ulteriori dettagli, foto degli interni, planimetrie e altre info, se disponibili, saranno consultabili previo appuntamento nella sede di FERRARA con ANDREA che inoltre ti informerà sulle possibilità di aggiudicarti questo affare. L'immobile pubblicato al momento è sottoposto a procedura di vendita legale; Gescom srl è specializzata nella ricerca e pianificazione di investimenti immobiliari secondo innovative strategie di acquisto. Contattaci subito potrai valutare assieme a un nostro tecnico canali distinti di acquisto dell'immobile, procedura di vendita diretta senza ricorrere all'asta (d.lgs. 149/2022) e ancora stralcio immobiliare. Le informazioni sopra riportate non sostituiscono l'avviso pubblicato dal Tribunale competente ne' l'integrale gestione da parte del delegato designato. Il testo e le specifiche indicate nella presente pagina sono generate automaticamente attraverso l'utilizzo di software e/o da A. I., Gescom srl invita a verificare le formazioni e i materiali multimediali sui canali ufficiali, declinando fin d'ora ogni responsabilità su eventuali errori o incongruenze. Gescom Italia srl leader negli stralci immobiliari e n[…]


