Valutazione immobiliare indipendente, accurata e gratuita
L'Opinione di Caasa® per l'appartamento in vendita a Comacchio a 195.000 € (cod.65a44822)
Secondo Caasa, per l'appartamento in vendita a Comacchio, la richiesta di 195.000 € è leggermente vantaggiosa rispetto agli annunci simili.
Analisi immobiliare
L'appartamento è proposto in vendita a
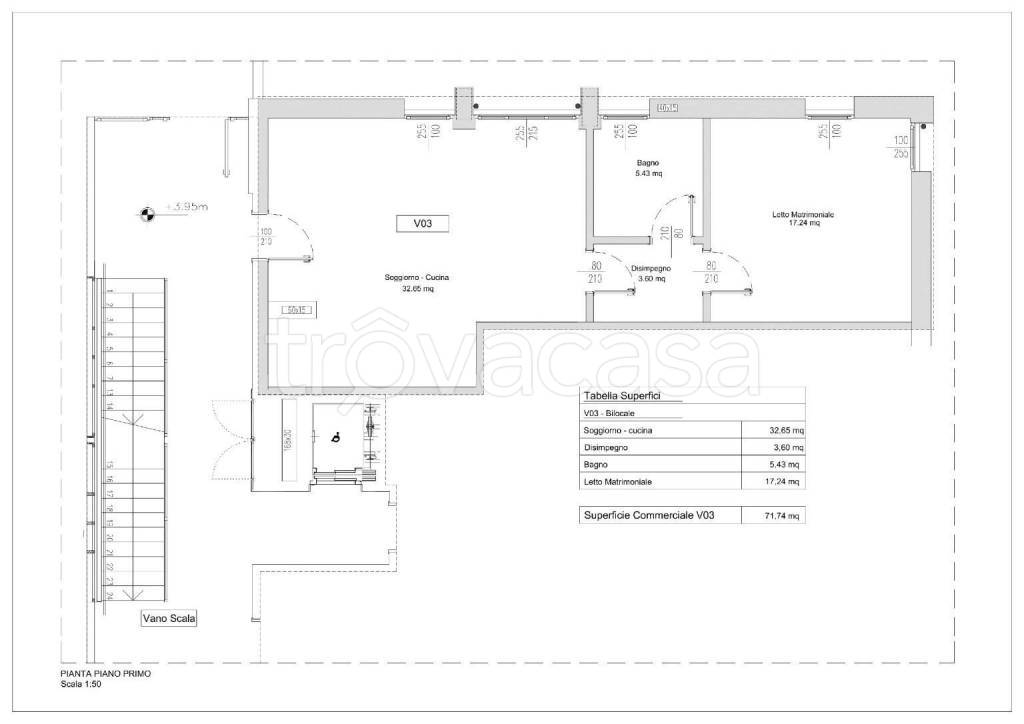
195.000 € per una
superficie commerciale di
72 m² e quindi ad un prezzo per metro quadrato pari a
2708 €/m²
.
Questo prezzo
è di poco inferiore a quello stimato da Caasa per immobili in vendita simili per tipologia, caratteristiche e classe energetica, che è compreso tra
2.897 €/m² e
3.095 €/m².
Sono stati utilizzati in raffronto i soli valori medi cittadini per appartamenti (da 1.635 €/m² a 2.645 €/m²) e per bivani (da 1.725 €/m² a 2.635 €/m²), visto che non è stato possibile determinare in modo affidabile la posizione dell'immobile. All'elaborazione della stima ha però contribuito anche la classe energetica (A) oltre alla condizione dell'immobile (di nuova costruzione) e alla presenza di alcune caratteristiche significative come la presenza dell'ascensore o il posto auto. Per questi motivi l'intervallo dei valori considerati accettabili per l'offerta è comunque ampio.
Mercato immobiliare a Comacchio
Per quanto riguarda più in generale la città di Comacchio, sono presenti al momento ben circa 2.000 annunci per
appartamenti in vendita (quasi il 40% dell'intera provincia)
e il maggior numero di annunci per questa tipologia sono relativi alla zona di Lido degli Estensi.
Possiamo inoltre considerare che in tutta la città negli ultimi 6 mesi, i prezzi per appartamenti in vendita sono
in leggero aumento (+2,69%).
NOVITÀ Il risultato che vedi dipende dai dati che siamo riusciti ad estrarre dall'annuncio: ottieni una stima più accuranta di questo immobile, inserendo dati più precisi.
N.B. L'Opinione di Caasa® è un servizio sperimentale realizzato tramite tecniche di Intelligenza Artificiale, fornito senza alcuna garanzia di correttezza e completezza. Leggi il disclaimer o segnalaci un problema.
IMMAGINI
IN SINTESI
PROPOSTO DA:
IMMOBILIARE PRIMO PIANO
DESCRIZIONE
di nuova costruzione con posto auto con ascensore di nuova costruzione
Occasione unica per convenienza e tipologia, in vista di Via Comacchio, in posizione ottimamente servita e collegata, ma appartata rispetto al traffico, ugualmente comoda al raggiungimento sia del centro città che dell'ospedale, in contesto condomini […]
