Valutazione immobiliare indipendente, accurata e gratuita

Appartamento in vendita a Comacchio (cod.64ee6e28)

Caasa non ha sufficienti informazioni per commentare l'appartamento in vendita a Comacchio - 64ee6e28.

Analisi immobiliare
I dati in posseso di Caasa per quest'immobile sono insufficienti, inaffidabili o contraddittori per proporre un'analisi attendibile.
Mercato immobiliare a Comacchio
Per quanto riguarda più in generale la città di Comacchio, sono presenti al momento ben oltre mille annunci per appartamenti in vendita (quasi il 40% dell'intera provincia) e il maggior numero di annunci per questa tipologia sono relativi alla zona di Lido degli Estensi.

Per quanto riguarda la dinamica dei prezzi, negli ultimi 6 mesi i prezzi medi in tutta la città per appartamenti in vendita sono in leggero aumento (+2,44%).

NOVITÀ Il risultato che vedi dipende dai dati che siamo riusciti ad estrarre dall'annuncio: ottieni una stima più accuranta di questo immobile, inserendo dati più precisi.

N.B. L'Opinione di Caasa® è un servizio sperimentale realizzato tramite tecniche di Intelligenza Artificiale, fornito senza alcuna garanzia di correttezza e completezza. Leggi il disclaimer o segnalaci un problema.

IMMAGINI

IN SINTESI

Prezzo:
nd
Superficie:
n.d. m²
Piano:
n.d.
Bagni:
1
Classe energetica:
F
Città:
Comacchio (FE)
Zona OMI:
R1 (ZONA AGRICOLA E FRAZIONI MINORI)
Indirizzo:
Pubblicato:
gio 9 ottobre 2025

DESCRIZIONE

di recente ristrutturazione con terrazza con balcone di recente ristrutturazione con cantina con cucina abitabile in asta giudiziaria

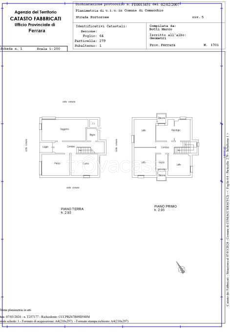
ASTA GIUDIZIARIA L'immobile è composto da un edificio indipendente ad uso residenziale, originariamente colonico, edificato tra gli anni '60 e '70 dall'Ente Delta Padano. ? Si sviluppa su due piani fuori terra e include: Piano terra: loggia, corridoi […]

  • trovacasa.net