Valutazione immobiliare indipendente, accurata e gratuita
L'Opinione di Caasa® per l'appartamento in vendita a Zola Predosa in zona Madonna Prati a 379.000 € (cod.6548f6de)
Secondo Caasa, per l'appartamento a Zola Predosa in zona Madonna Prati, la richiesta di 379.000 € è significativamente vantaggiosa rispetto agli annunci simili.
Analisi immobiliare
L'appartamento, situato nella zona OMI R1, è proposto in vendita a
379.000 € per una
superficie commerciale di
201 m² e quindi ad un prezzo per metro quadrato pari a
1885 €/m²
.
Questo prezzo
è più vantaggioso di quello stimato da Caasa per immobili in vendita simili per tipologia, caratteristiche, classe energetica e localizzati nella stessa zona OMI, che è compreso tra
2.307 €/m² e
2.461 €/m².
La conoscenza con buona approssimazione della localizzazione dell'immobile ha consentito di utilizzare come raffronto i dati medi elaborati esattamente nella zona OMI di appertenenza (ZONA AGRICOLA DI PIANURA). Inoltre, Caasa ha potuto affinare la stima anche con la conoscenza della classe energetica (G) oltre che di alcune caratteristiche significative come il garage. Per questi motivi è possibile considerare un intervallo di valori accettabili per l'offerta abbastanza limitato.
Mercato immobiliare a Zola Predosa
Per quanto riguarda più in generale la città di Zola Predosa, sono presenti al momento più di 150 annunci per
appartamenti in vendita (meno del 5% dell'intera provincia)
e il maggior numero di annunci per questa tipologia sono relativi alla zona di Riale, mentre la zona di Madonna Prati risulta molto meno attiva considerando il numero di annunci presenti.
Possiamo inoltre considerare che in tutta la città negli ultimi 6 mesi, i prezzi per appartamenti in vendita sono
in sostanziale calo (-7,04%).
NOVITÀ Il risultato che vedi dipende dai dati che siamo riusciti ad estrarre dall'annuncio: ottieni una stima più accuranta di questo immobile, inserendo dati più precisi.
N.B. L'Opinione di Caasa® è un servizio sperimentale realizzato tramite tecniche di Intelligenza Artificiale, fornito senza alcuna garanzia di correttezza e completezza. Leggi il disclaimer o segnalaci un problema.
IMMAGINI
IN SINTESI
DESCRIZIONE
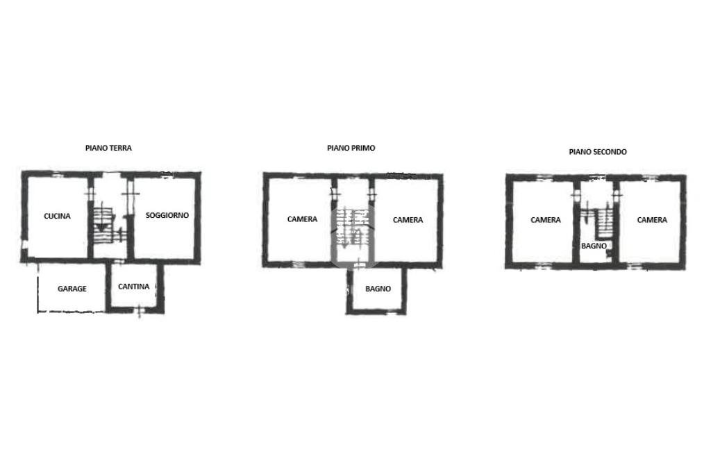
con posto auto con garage con giardino con cucina abitabile
PONTE RONCA: A Madonna Prati, in zona tranquilla proponiamo soluzione di testa con ingresso indipendente e giardino privato. L'immobile si sviluppa su tre livelli: al piano terra dall'atrio di ingresso si raggiunge il soggiorno e la cucina abitabile con accesso al giardino privato, al piano ammezzato troviamo il bagno; al primo piano due camere matrimoniali e infine al secondo piano altre due camere matrimoniali e il secondo bagno. L'immobile è dotato di un'autorimessa/deposito e di un posto auto all'interno del giardino privato. Per ulteriori informazioni e dettagli siamo disponibili dalle 09:00 alle 13:00 e dalle 15:00 alle 20:00 presso la nostra sede in Via Roma n°5 Zola Predosa. Per fissare una visita all'immobile ci contatti allo 051/750399


