Valutazione immobiliare indipendente, accurata e gratuita
L'Opinione di Caasa® per la casa indipendente in vendita a Zola Predosa in zona Rivabella a 640.000 € (cod.63d22ef6)
Secondo Caasa, per la casa indipendente a Zola Predosa in zona Rivabella, la richiesta di 640.000 € è leggermente vantaggiosa rispetto agli annunci simili.
Analisi immobiliare
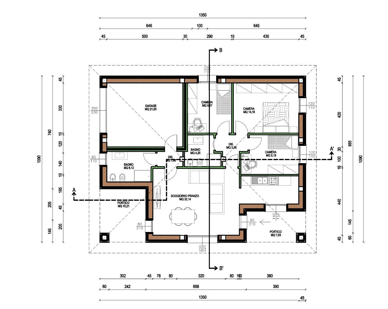
La casa indipendente, situata nella zona OMI D6, è proposta in vendita a
640.000 € per una
superficie commerciale di
160 m² e quindi ad un prezzo per metro quadrato pari a
4000 €/m²
.
Questo prezzo
è leggeremente più conveniente di quello stimato da Caasa per immobili in vendita simili per tipologia, caratteristiche, classe energetica e localizzati nella stessa zona OMI, che è compreso tra
4.066 €/m² e
4.303 €/m².
La conoscenza con buona approssimazione della localizzazione dell'immobile ha consentito di utilizzare come raffronto i dati medi elaborati esattamente nella zona OMI di appertenenza (FRAZIONE GESSI PONTE RIVABELLA) per case indipendenti (da 2.715 €/m² a 3.835 €/m²) e per ville (da 2.950 €/m² a 3.935 €/m²). Inoltre, Caasa ha potuto affinare la stima anche con la conoscenza della classe energetica (A+) oltre che dello stato dell'immobile (di nuova costruzione) e di alcune caratteristiche significative come il garage. Per questi motivi è possibile considerare un intervallo di valori accettabili per l'offerta abbastanza limitato.
Mercato immobiliare a Zola Predosa
Per quanto riguarda più in generale la città di Zola Predosa, sono presenti al momento più di cento annunci per
case indipendenti in vendita (meno del 5% dell'intera provincia)
e il maggior numero di annunci per questa tipologia sono relativi alla zona di Ponte Ronca, mentre la zona di Rivabella risulta molto meno attiva considerando il numero di annunci presenti.
La richiesta media nella zona dove sorge la casa indipendente (Rivabella) è pari a
3.295 €/m², molto vicina ai valori della zona Gessi che sono i più alti della città .
Possiamo inoltre considerare che in tutta la città negli ultimi 6 mesi, i prezzi per case indipendenti in vendita sono
in deciso calo (-7,97%).
NOVITÀ Il risultato che vedi dipende dai dati che siamo riusciti ad estrarre dall'annuncio: ottieni una stima più accuranta di questo immobile, inserendo dati più precisi.
N.B. L'Opinione di Caasa® è un servizio sperimentale realizzato tramite tecniche di Intelligenza Artificiale, fornito senza alcuna garanzia di correttezza e completezza. Leggi il disclaimer o segnalaci un problema.
IMMAGINI
IN SINTESI
PROPOSTO DA:
MIDA GROUP
DESCRIZIONE
di nuova costruzione con posto auto con garage con giardino di nuova costruzione
ZOLA PREDOSA - PEDECOLLINARE vi proponiamo una splendida villa di nuova costruzione immersa nel verde ma non isolata. Misura circa 160 mq su un UNICO LIVELLO con circa 2500 mq di giardino ed è composta da soggiorno, cucina, 3 camere, 2 bagni, autorimessa e porticato. Finiture di alto livello con impianti di ultima generazione che la portano in 4 con bassissimi consumi, progettazione finale su misura con possibilità di modificare anche gli esterni e realizzare una piscina. Siamo a soli 600mt dalla frazione Rivabella, 2 km da Calderino e 3 Km da Zola Predosa in una posizione ottimale che coniuga privacy con la funzionalità necessaria alle attività lavorative. Pronta in 9/12 mesi, vi aspettiamo per illustrarvi ogni particolare. In co-esclusiva con "La Rocca Case". Euro 640.000



