Valutazione immobiliare indipendente, accurata e gratuita
Appartamento in vendita a Vergato a 135.000 € (cod.65934606)
Caasa non ha sufficienti informazioni per commentare l'appartamento in vendita a Vergato - 65934606.
Analisi immobiliare
I dati in posseso di Caasa per quest'immobile sono insufficienti, inaffidabili o contraddittori per proporre un'analisi attendibile.
Mercato immobiliare a Vergato
Per quanto riguarda più in generale il comune di Vergato, sono presenti al momento più di cento annunci per
appartamenti in vendita (meno del 5% dell'intera provincia)
e il maggior numero di annunci per questa tipologia sono relativi alla zona di Tolè.
Possiamo inoltre considerare che in tutto il comune negli ultimi 6 mesi, i prezzi per appartamenti in vendita sono
in debole diminuzione (-1,55%).
NOVITÀ Il risultato che vedi dipende dai dati che siamo riusciti ad estrarre dall'annuncio: ottieni una stima più accuranta di questo immobile, inserendo dati più precisi.
N.B. L'Opinione di Caasa® è un servizio sperimentale realizzato tramite tecniche di Intelligenza Artificiale, fornito senza alcuna garanzia di correttezza e completezza. Leggi il disclaimer o segnalaci un problema.
IMMAGINI
IN SINTESI
DESCRIZIONE
di nuova costruzione con posto auto con garage con terrazza con termocondizionamento con angolo cottura con balcone con riscaldamento autonomo di nuova costruzione
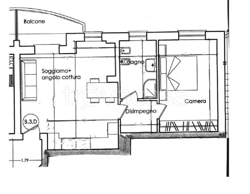
Si propone in vendita bilocale composto da ingresso-soggiorno-angolo cottura, camera, bagno e balcone. *Immagini a scopo esemplificativo Residenza Belvedere in corso di ultimazione, situato in via Modena 156, in posizione dominante, esposto al sole e comodo ai servizi, al centro storico, alla stazione FS, all’ospedale, alla farmacia e alle scuole. Diverse tipologie di appartamenti luminosi e panoramici, ingressi autonomi e accessi indipendenti anche per diversamente abili, giardini privati e garage. Classe energetica in fase di realizzazione (presunta A). . Struttura antisismica, mattoni a faccia-vista con interposto isolante termico. Tetto in legno a vista, isolamento termico, camera di ventilazione, impermeabilizzato, manto di copertura in lega di alluminio a doppia graffatura. . Riscaldamento: autonomo a pavimento, regolazione temperatura in ogni ambiente. . Infissi in PVC – vetrocamera, cassonetto a scomparsa con alto grado di isolamento termico e acustico, e tenuta al vento. Tapparelle in alluminio coibentate e motorizzate. . Predisposizioni impianti di climatizzazione, filtrazione e sanificazione aria, VMC, predisposizione di pompa di calore e acqua sanitaria. . Agevolazioni fiscali, tasse fisse e iva 4% per prima casa. . Lavoriamo per migliorare la qualità e il benessere della vita, case sicure, calde, silenziose e a basso consumo energetico. . Diversifica il tuo patrimonio: investi sul mattone. Un buon patrimonio garantisce tranquillit


