Valutazione immobiliare indipendente, accurata e gratuita
L'Opinione di Caasa® per l'appartamento in vendita a Valsamoggia in zona Crespellano a 363.000 € (cod.658ac0e7)
Secondo Caasa, per l'appartamento a Valsamoggia in zona Crespellano, la richiesta di 363.000 € è significativamente vantaggiosa rispetto agli annunci simili.
Analisi immobiliare
L'appartamento, situato nella zona OMI B1, è proposto in vendita a
363.000 € per una
superficie commerciale di
130 m² e quindi ad un prezzo per metro quadrato pari a
2792 €/m²
.
Tale valore
è decisamente inferiore a quello stimato da Caasa per immobili in vendita simili per tipologia, caratteristiche, classe energetica e localizzati nella stessa zona OMI, che è compreso tra
3.611 €/m² e
3.883 €/m².
La conoscenza con buona approssimazione della localizzazione dell'immobile ha consentito di utilizzare come raffronto i dati medi elaborati esattamente nella zona OMI di appertenenza (CRESPELLANO CAPOLUOGO) per appartamenti (da 1.980 €/m² a 3.025 €/m²) e per trivani (da 2.255 €/m² a 3.065 €/m²). Inoltre, Caasa ha potuto affinare la stima anche con la conoscenza della classe energetica (A+) oltre che dello stato dell'immobile (di nuova costruzione) e di alcune caratteristiche significative come il garage, la disponibilità di una cantina o la presenza dell'ascensore. Per queste ragioni i valori accettabili per l'offerta costituiscono un intervallo abbastanza limitato.
Mercato immobiliare a Valsamoggia
Per quanto riguarda più in generale la città di Valsamoggia, sono presenti al momento oltre 500 annunci per
appartamenti in vendita (meno del 5% dell'intera provincia)
e il maggior numero di annunci per questa tipologia sono relativi alla zona di Bazzano, ma anche la zona di Crespellano è molto attiva dal punto di vista immobiliare.
La richiesta media nella zona dove sorge l'appartamento (Crespellano) è pari a
2.550 €/m² e ne fa la più pregiata della città .
La dinamica dei prezzi in tutta la città mostra che negli ultimi 6 mesi, i prezzi per appartamenti in vendita sono
sostanzialmente stabili (+0,38%).
NOVITÀ Il risultato che vedi dipende dai dati che siamo riusciti ad estrarre dall'annuncio: ottieni una stima più accuranta di questo immobile, inserendo dati più precisi.
N.B. L'Opinione di Caasa® è un servizio sperimentale realizzato tramite tecniche di Intelligenza Artificiale, fornito senza alcuna garanzia di correttezza e completezza. Leggi il disclaimer o segnalaci un problema.
IMMAGINI
IN SINTESI
PROPOSTO DA:
AFFILIATO TECNORETE STUDIO BAZZANO SRL
DESCRIZIONE
di nuova costruzione con garage con cantina con terrazza di nuova costruzione con angolo cottura con ascensore
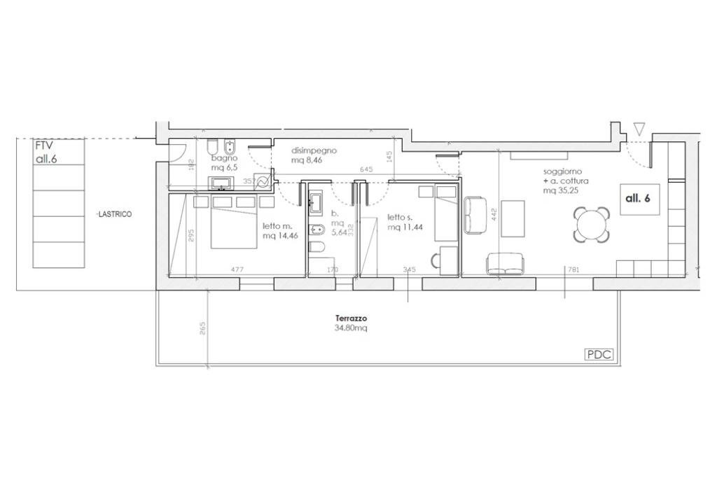
Nel cuore di Crespellano, nel comune di Valsamoggia, è in vendita un appartamento di nuova costruzione, parte di un esclusivo intervento residenziale. L'immobile, sito al primo piano, sarà così composto: ingresso su soggiorno con angolo cottura con accesso al terrazzo di circa 34 mq, una camera matrimoniale, una camera doppia, disimpegno zona notte, due bagni finestrati; completano la proprietà un lastrico di circa 25 mq ed un'autorimessa con annessa cantina. La presenza di un ascensore garantisce comodità e accessibilità. L'immobile sarà edificato con i massimi criteri di costruzione che punteranno alla resilienza sismica, all'efficienza energetica e alla sostenibilità ambientale dei materiali; infatti vanterà una assicurando efficienza e risparmio energetico. Questa soluzione abitativa rappresenta un'opportunità unica per chi desidera vivere in un contesto signorile e moderno, nel cuore di una comunità vivace. Fissa un appuntamento. Chiama in ufficio 051.830466 oppure via mail bo2c4



