Valutazione immobiliare indipendente, accurata e gratuita
L'Opinione di Caasa® per l'appartamento in vendita a Valsamoggia in zona Crespellano a 363.000 € (cod.657da408)
Secondo Caasa, per l'appartamento a Valsamoggia in zona Crespellano, la richiesta di 363.000 € è significativamente vantaggiosa rispetto agli annunci simili.
Analisi immobiliare
L'appartamento è proposto in vendita a
363.000 € per una
superficie commerciale di
130 m² e quindi ad un prezzo per metro quadrato pari a
2792 €/m²
.
Questo valore
è significativamente più basso di quello stimato da Caasa per immobili in vendita simili per tipologia, caratteristiche, classe energetica e zona, che è compreso tra
3.178 €/m² e
3.432 €/m².
Considerata la posizione dell'appartamento si sono utilizzati in raffronto i valori medi nelle zone limitrofe e particolarmente le richieste in vendita per appartamenti in zona Crespellano (da 2.040 €/m² a 3.025 €/m²) e per trivani in zona Crespellano (da 2.340 €/m² a 3.025 €/m²). Ad affinare la stima ha contribuito anche la classe energetica (A+) oltre alla conoscenza dello stato dell'immobile (di nuova costruzione) e di alcune caratteristiche significative come la disponibilità di una cantina o il garage. Per i motivi esposti è possibile ottenere un intervallo di valori accettabili per l'offerta relativamente limitato.
Mercato immobiliare a Valsamoggia
Per quanto riguarda più in generale la città di Valsamoggia, sono presenti al momento oltre 500 annunci per
appartamenti in vendita (meno del 5% dell'intera provincia)
e il maggior numero di annunci per questa tipologia sono relativi alla zona di Bazzano, ma anche la zona di Crespellano è molto attiva dal punto di vista immobiliare.
La richiesta media nella zona dove sorge l'appartamento (Crespellano) è pari a
2.585 €/m² e ne fa la più pregiata della città .
Per quanto riguarda la dinamica dei prezzi, negli ultimi 6 mesi i prezzi medi in tutta la città per appartamenti in vendita sono
sostanzialmente stabili (+0,38%).
NOVITÀ Il risultato che vedi dipende dai dati che siamo riusciti ad estrarre dall'annuncio: ottieni una stima più accuranta di questo immobile, inserendo dati più precisi.
N.B. L'Opinione di Caasa® è un servizio sperimentale realizzato tramite tecniche di Intelligenza Artificiale, fornito senza alcuna garanzia di correttezza e completezza. Leggi il disclaimer o segnalaci un problema.
IMMAGINI
IN SINTESI
PROPOSTO DA:
AFFILIATO TECNOCASA : ETICASA S.R.L.
DESCRIZIONE
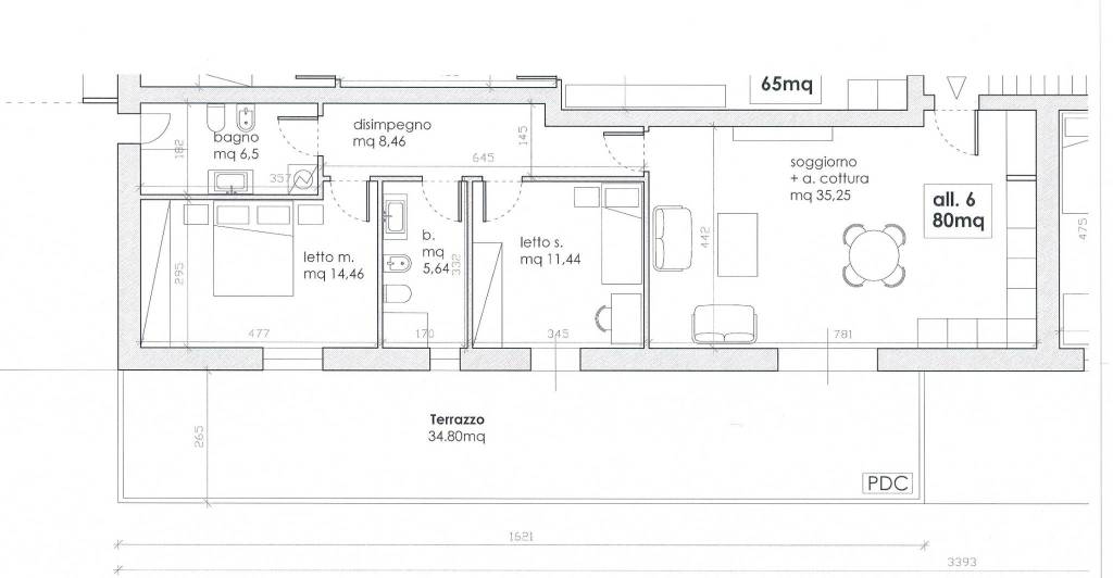
di nuova costruzione con posto auto con garage con cantina con terrazza di nuova costruzione
L'agenzia Tecnocasa di Crespellano, sita in Via Provinciale n°240 a Crespellano di Valsamoggia, PROPONE IN VENDITA A CRESPELLANO, IN CENTRO AL PAESE, palazzina di nuova costruzione con possibilità di diverse tipologie. APP.TO A6-> PIANO PRIMO, TRILOCALE DI MQ 130 COMM.LI CON TERRAZZO DI MQ 43E LASTRICO DI MQ 26. CANTINA E GARAGE. Consegna prevista per fine 2027. Possibilità di personalizzazione interna. Ottimo capitolato, elevata classe energetica. Per visionare i progetti e le planimetrie, potete contattarci al numero 051960676



