Valutazione immobiliare indipendente, accurata e gratuita

Appartamento in vendita a Valsamoggia in zona Bazzano a 406.000 € (cod.64ec98c6)

Caasa non ha sufficienti informazioni per commentare l'appartamento a Valsamoggia in zona Bazzano - 64ec98c6.

Analisi immobiliare
I dati in posseso di Caasa per quest'immobile sono insufficienti, inaffidabili o contraddittori per proporre un'analisi attendibile.
Mercato immobiliare a Valsamoggia
Per quanto riguarda più in generale la città di Valsamoggia, sono presenti al momento oltre 500 annunci per appartamenti in vendita (meno del 5% dell'intera provincia) e il maggior numero di annunci per questa tipologia sono relativi proprio alla zona di Bazzano.
La richiesta media nella zona dove sorge l'appartamento (Bazzano) è pari a 2.295 €/m², molto vicina ai valori della zona Crespellano che sono i più alti della città .
Possiamo inoltre considerare che in tutta la città negli ultimi 6 mesi, i prezzi per appartamenti in vendita sono in debole diminuzione (-1,94%).

NOVITÀ Il risultato che vedi dipende dai dati che siamo riusciti ad estrarre dall'annuncio: ottieni una stima più accuranta di questo immobile, inserendo dati più precisi.

N.B. L'Opinione di Caasa® è un servizio sperimentale realizzato tramite tecniche di Intelligenza Artificiale, fornito senza alcuna garanzia di correttezza e completezza. Leggi il disclaimer o segnalaci un problema.

IMMAGINI

IN SINTESI

Prezzo:
406.000 €
Superficie:
123 m²
Prezzo al m²:
3300 €/m²
Piano:
(con ascensore)
Bagni:
2
Classe energetica:
A+
Città:
Valsamoggia (BO)
Zona OMI:
R3 (BAZZANO ZONA AGRICOLA DI PIANURA)
Indirizzo:
Pubblicato:
mer 8 ottobre 2025

PROPOSTO DA:

GRUPPO IMMOBILIARE MACCHELLI S.R.L.

DESCRIZIONE

di nuova costruzione con posto auto con garage con terrazza con termocondizionamento con angolo cottura di nuova costruzione con ascensore

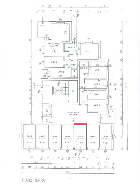
RIF. B176 VALSAMOGGIA (Loc. BAZZANO) - IN COSTRUZIONE CON CONSEGNA ENTRO FINE 2026 In nuova palazzina di sole 7 UNITA' in " immersa nel verde, comoda al centro commerciale "Il Melograno" e a tutti i servizi, proponiamo in vendita APPARTAMENTO (tipo ATTICO) al 2° ed ultimo piano con ASCENSORE. L'immobile è composto da soggiorno con angolo cottura e ampio TERRAZZO ABITABILE COPERTO di 20 mq circa, 3 CAMERE da letto, 2 BAGNI, GARAGE e POSTO AUTO PRIVATO compresi. Le rifiniture saranno di elevata qualità, Riscaldamento a pavimento autonomo, impianto fotovoltaico, tapparelle elettriche e infissi Finstral, zanzariere, impianto di climatizzazione a pompa di calore in zona giorno e notte, ventilazione meccanica controllata, insonorizzazione pareti di ultima generazione. Possibilità di personalizzare gli ambienti, le rifiniture, i pavimenti e rivestimenti. Tutte le unità sono già comprensive di garage e posto auto di proprietà. Su questo intervento in è possibile accedere ad un mutuo green, un prodotto agevolato rivolto a chi acquista case ecosostenibili con un risparmio considerevole in termini di interessi. Palazzina B - Alloggio 6 - CANTIERE in NOSTRA ESCLUSIVA - € 406.000 - Info, capitolato e planimetrie presso Ufficio di Bazzano tel. 051/832830 e-mail:bazzano@macchelli.it IMPORTANTE: le caratteristiche tecniche, la disposizione interna e gli accessori indicati, potrebbero, in alcuni casi essere diversi dall’effettivo stato di fatto dell’immobile. A causa delle difformità dei dati pubblicati dai vari portali, l’Agenzia Immobiliare declina ogni responsabilità per eventuali involontari incoerenze. Si precisa che le descrizioni sopra riportate non rappresentano alcun impegno contrattuale. Per garantire la privacy, l’indirizzo può non rispecchiare esattamente l’ubicazione dell’immobile ed è utile al solo fine di fornire un riferimento generico per la su localizzazione ed un ausilio alla consultazione

  • yescasa.it
  • bakeca.it
  • annuncio-casa.it
  • bilocale.it