Valutazione immobiliare indipendente, accurata e gratuita
Appartamento in vendita a Sasso Marconi a 265.000 € (cod.6589d427)
Caasa non ha sufficienti informazioni per commentare l'appartamento in vendita a Sasso Marconi - 6589d427.
Analisi immobiliare
I dati in posseso di Caasa per quest'immobile sono insufficienti, inaffidabili o contraddittori per proporre un'analisi attendibile.
Mercato immobiliare a Sasso Marconi
Per quanto riguarda più in generale il comune di Sasso Marconi, sono presenti al momento più di 200 annunci per
appartamenti in vendita (meno del 5% dell'intera provincia) .
La dinamica dei prezzi in tutto il comune mostra che negli ultimi 6 mesi, i prezzi per appartamenti in vendita sono
sostanzialmente stabili (+0,31%).
NOVITÀ Il risultato che vedi dipende dai dati che siamo riusciti ad estrarre dall'annuncio: ottieni una stima più accuranta di questo immobile, inserendo dati più precisi.
N.B. L'Opinione di Caasa® è un servizio sperimentale realizzato tramite tecniche di Intelligenza Artificiale, fornito senza alcuna garanzia di correttezza e completezza. Leggi il disclaimer o segnalaci un problema.
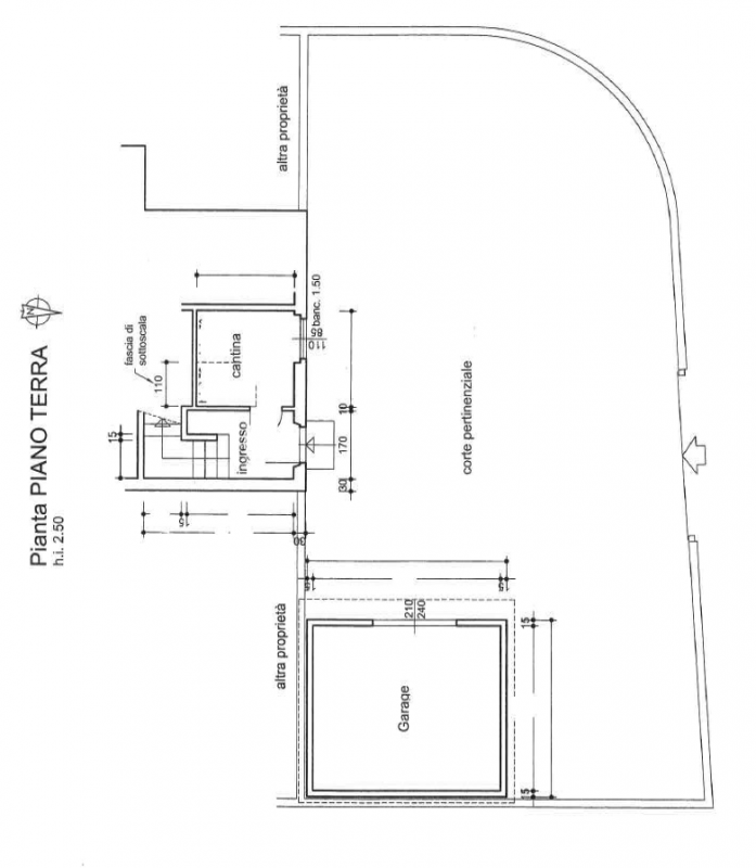
IMMAGINI
IN SINTESI
DESCRIZIONE
da ristrutturare con cantina con garage con posto auto con giardino con terrazza con termocondizionamento con balcone con riscaldamento autonomo da ristrutturare senza ascensore
SASSO MARCONI, Località 5 Cerri: vendesi luminoso appartamento situato in una piccola palazzina di sole quattro unità. A soli 3 km dal centro di Sasso Marconi e nelle immediate vicinanze del casello autostradale, questa proprietà offre un accesso comodo ai principali servizi e collegamenti stradali. L'immobile è dotato di ingresso indipendente al piano terra, dove si trova anche una cantina/lavanderia utile per le esigenze quotidiane. Al primo piano si sviluppano gli spazi abitativi con un accogliente soggiorno che comunica con la zona pranzo e cucina, tutto illuminato da ampie finestre che offrono vista sul balcone esterno. La zona notte comprende due camere matrimoniali, una delle quali dispone anch'essa di un proprio balcone privato perfetto per godere della tranquillità circostante. Inclusi nella vendita ci sono anche uno sottotetto esclusivo ideale come ripostiglio, un garage spazioso ed un giardino privato di circa 200 mq completo di posto auto interno. Il riscaldamento autonomo garantisce il massimo comfort durante tutto l'anno senza alcuna spesa condominiale da sostenere. Questa soluzione rappresenta l'ideale per famiglie alla ricerca della serenità senza rinunciare alla comodità dei servizi urbani. Non perdere l'opportunità di vivere in questo incantevole appartamento! Contatta subito la nostra agenzia per maggiori informazioni o per prenotare una visita. Richiesta € 265.000






