Valutazione immobiliare indipendente, accurata e gratuita
Appartamento in vendita a Sasso Marconi a 245.000 € (cod.656e23ad)
Caasa non ha sufficienti informazioni per commentare l'appartamento in vendita a Sasso Marconi - 656e23ad.
Analisi immobiliare
I dati in posseso di Caasa per quest'immobile sono insufficienti, inaffidabili o contraddittori per proporre un'analisi attendibile.
Mercato immobiliare a Sasso Marconi
Per quanto riguarda più in generale il comune di Sasso Marconi, sono presenti al momento più di 200 annunci per
appartamenti in vendita (meno del 5% dell'intera provincia) .
Relativamente alla dinamica dei prezzi, possiamo dire che negli ultimi 6 mesi i prezzi medi in tutto il comune per appartamenti in vendita sono
in debole aumento (+1,63%).
NOVITÀ Il risultato che vedi dipende dai dati che siamo riusciti ad estrarre dall'annuncio: ottieni una stima più accuranta di questo immobile, inserendo dati più precisi.
N.B. L'Opinione di Caasa® è un servizio sperimentale realizzato tramite tecniche di Intelligenza Artificiale, fornito senza alcuna garanzia di correttezza e completezza. Leggi il disclaimer o segnalaci un problema.
IMMAGINI
IN SINTESI
PROPOSTO DA:
RENO IMMOBILIARE
DESCRIZIONE
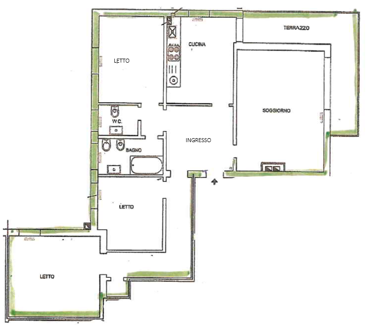
da ristrutturare con garage con cantina con posto auto con terrazza con giardino con termocondizionamento con cucina abitabile con balcone da ristrutturare senza ascensore
Sasso Marconi centralissimo a soli 100 metri dalla piazza proponiamo in vendita in piccola palazzina in pietra vista di sole 4 unità appartamento al primo ed ultimo piano composto da ingresso, sala, con balcone, cucina abitabile, 3 camere matrimoniali, 2 bagni, ripostiglio e ampia cantina. Vi è una parte comune dove si trova una tavernetta, un bagno, una cantina e ripostiglio. Richiesta €245.000 Oltre a garage a €18.000





