Valutazione immobiliare indipendente, accurata e gratuita
Casa indipendente a Sala Bolognese in zona Bagno di Piano a 700.000 € (cod.6542c041)
Caasa non ha sufficienti informazioni per commentare la casa indipendente a Sala Bolognese Bagno di Piano - 6542c041.
Analisi immobiliare
I dati in posseso di Caasa per quest'immobile sono insufficienti, inaffidabili o contraddittori per proporre un'analisi attendibile.
Mercato immobiliare a Sala Bolognese
Per quanto riguarda più in generale il comune di Sala Bolognese, sono presenti al momento più di cento annunci per
case indipendenti in vendita (meno del 5% dell'intera provincia)
e il maggior numero di annunci per questa tipologia sono relativi alla zona di Padulle, mentre la zona di Bagno di Piano risulta molto meno attiva considerando il numero di annunci presenti.
La richiesta media nella zona dove sorge la casa indipendente (Bagno di Piano) è pari a
2.210 €/m², molto vicina ai valori della zona Osteria Nuova che sono i più alti del comune .
Relativamente alla dinamica dei prezzi, possiamo dire che negli ultimi 6 mesi i prezzi medi in tutto il comune per case indipendenti in vendita sono
in debole aumento (+1,56%).
NOVITÀ Il risultato che vedi dipende dai dati che siamo riusciti ad estrarre dall'annuncio: ottieni una stima più accuranta di questo immobile, inserendo dati più precisi.
N.B. L'Opinione di Caasa® è un servizio sperimentale realizzato tramite tecniche di Intelligenza Artificiale, fornito senza alcuna garanzia di correttezza e completezza. Leggi il disclaimer o segnalaci un problema.
IMMAGINI
IN SINTESI
PROPOSTO DA:
INTERMEDIA SERVIZI IMMOBILIARI DI ANTONICELLI MARIA
DESCRIZIONE
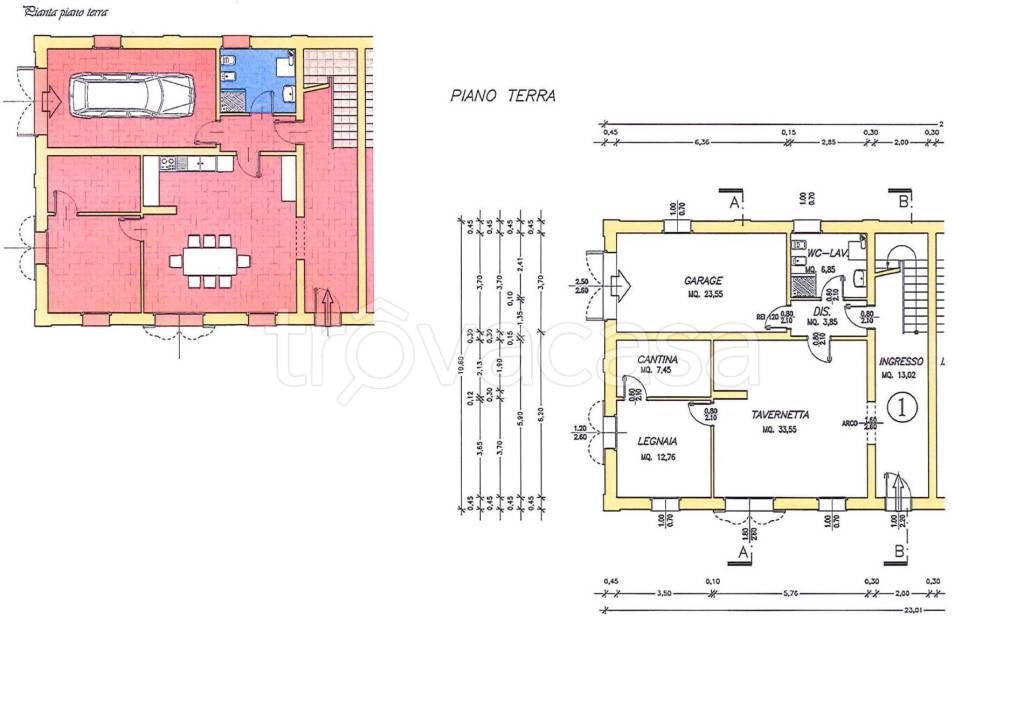
di nuova costruzione con posto auto con garage con giardino con cantina con termocondizionamento di nuova costruzione con riscaldamento autonomo con cucina abitabile
Bagno di Piano NUOVA COSTRUZIONE IN In contesto molto verde e riservato, ma comodo ai principali servizi, proponiamo in vendita porzione di villa bifamiliare disposta su tre livelli, caratterizzata da spazi generosi, finiture di qualità e un’importante area esterna privata. COMPOSIZIONE: Piano terra: Ampio ingresso arredabile, tavernetta, legnaia, cantina, disimpegno, WC/lavanderia e autorimessa collegata internamente all’abitazione. Piano primo: Disimpegno, luminoso soggiorno, cucina abitabile, disimpegno notte, due camere matrimoniali di cui una con cabina armadio e due bagni. Piano secondo: Ampia mansarda con coperto in legno a vista e Velux. Completano la proprietà area cortiliva e giardino esclusivo di circa 1.600 mq, autorimessa e tre posti auto. DOTAZIONI E CARATTERISTICHE: - Riscaldamento autonomo a pavimento - Caldaia a condensazione con integrazione solare termico - Impianto fotovoltaico privato - Predisposizione impianto di climatizzazione caldo/freddo - Predisposizione impianto di allarme - Infissi in legno con doppi vetri - Zanzariere - Porte interne laccate - Videocitofono - Cancello automatizzato - Ottime finiture e possibilità di personalizzazioni Soluzione ideale per chi cerca comfort moderno, efficienza energetica, ampi spazi e tranquillità, senza rinunciare alla vicinanza ai servizi. L’acquisto di questo immobile consente di accedere alle agevolazioni fiscali previste per gli interventi edilizi, con una detrazione IRPEF potenziale fino a € 48.000 da ripartire in 10 anni, secondo i requisiti e le modalità stabilite dalla normativa vigente. GESTIONE DIRETTA DI VENDITA DEL VOSTRO USATO. CHIAMA E PRENOTA IL TUO APPUNTAMENTO! Per info e visite: 333 6661861 (Maria) INTERMEDIA SERVIZI IMMOBILIARI S.N.C. Via della Pace, 88 40010 Padulle di Sala Bolognese (BO) Classe Energetica: A4


