Valutazione immobiliare indipendente, accurata e gratuita
L'Opinione di Caasa® per l'appartamento in vendita a San Lazzaro di Savena a 482.000 € (cod.651e8061)
Secondo Caasa, per l'appartamento in vendita a San Lazzaro di Savena, la richiesta di 482.000 € è significativamente vantaggiosa rispetto agli annunci simili.
Analisi immobiliare
L'appartamento è proposto in vendita a
482.000 € per una
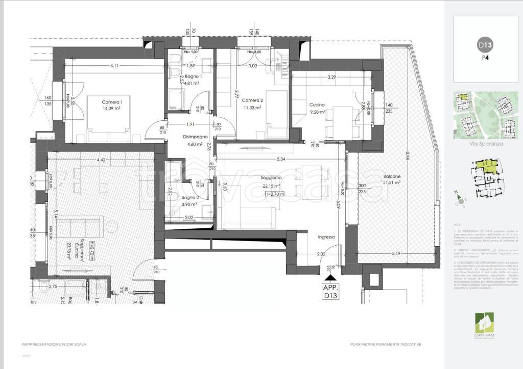
superficie commerciale di
111 m² e quindi ad un prezzo per metro quadrato pari a
4342 €/m²
.
Tale prezzo
è più conveniente di quello stimato da Caasa per immobili in vendita simili per tipologia, caratteristiche e classe energetica, che è compreso tra
5.117 €/m² e
5.443 €/m².
Sono stati utilizzati in raffronto i soli valori medi cittadini per appartamenti (da 2.895 €/m² a 4.530 €/m²) e per trivani (da 2.950 €/m² a 4.465 €/m²), visto che non è stato possibile determinare in modo affidabile la posizione dell'immobile. All'elaborazione della stima ha però contribuito anche la classe energetica (A+) oltre alla condizione dell'immobile (di nuova costruzione) e alla presenza di alcune caratteristiche significative come il posto auto o la disponibilità di una cantina. Per questi motivi i valori considerati accettabili per l'offerta costituiscono un intervallo comunque ampio.
Mercato immobiliare a San Lazzaro di Savena
Per quanto riguarda più in generale la città di San Lazzaro di Savena, sono presenti al momento oltre 500 annunci per
appartamenti in vendita (meno del 5% dell'intera provincia)
e il maggior numero di annunci per questa tipologia sono relativi alla zona di Idice.
Relativamente alla dinamica dei prezzi, possiamo dire che negli ultimi 6 mesi i prezzi medi in tutta la città per appartamenti in vendita sono
in sostanziale aumento (+6,32%).
NOVITÀ Il risultato che vedi dipende dai dati che siamo riusciti ad estrarre dall'annuncio: ottieni una stima più accuranta di questo immobile, inserendo dati più precisi.
N.B. L'Opinione di Caasa® è un servizio sperimentale realizzato tramite tecniche di Intelligenza Artificiale, fornito senza alcuna garanzia di correttezza e completezza. Leggi il disclaimer o segnalaci un problema.
IMMAGINI
IN SINTESI
PROPOSTO DA:
Costa Immobiliare
DESCRIZIONE
di nuova costruzione con posto auto con terrazza con cantina di nuova costruzione con cucina abitabile con balcone
SAN LAZZARO DI SAVENA - VIA SPERANZA (S.Lazzaro centro) APPARTAMENTO CON 2 CAMERE DI MQ.110,00 C.A IN CORSO DI REALIZZAZIONE AL 4° PIANO CON BALCONE COPERTO DI C.A MQ.21,00 , IL TUTTO CON SISMA BONUS PER L'ACQUISTO DI € 34.560,00. PER QUESTO INTERVENTO NON E' DOVUTA MEDIAZIONE. L'appartamento è composto da: ingresso su ampio soggiorno, cucina abitabile, disimpegno nella parte notte che permette l'accesso a 2 camere e 2 bagni, balcone abitabile coperto di mq.21,00 c.a . L' appartamento che ora Vi proponiamo si sviluppa al quarto piano di una palazzina facente parte del complesso denominato "CORTE VERDE" che comprende 4 plazzine di 5 piani fuori terra tutte affacciate su un parco privato ad uso pubblico attreazzato con giochi per i bambini, aree per i momenti conviviali, panchine e alberature. Tutti gli appartamenti affacciano sul parco attraverso grandi e luminose vetrate che immettono in ampie terrazze coperte che in molte stagioni possono diventare un ampliamento della parte giorno. A circa 800,00 metri si incontra il centro di S. Lazzaro, alla stessa distanza sono presenti il supermercato CONAD e il PARCO EUROPA. La palazzina rispetterà le ultime Leggi sull' antisismica, sarà in classe A4 NZEB (edificio a consumo vicino allo zero), l'appartamento verrà dotato di riscaldmento a pannelli radianti a pavimento, infissi esterni in legno, vetri camera ad alto isolamento termo acustico, cassonetti a scomparsa ad alto isolamento. Sul tetto saranno installati pannelli solari per la produzione di energia elettrica condominiale, e pannelli solari termici per la produzione di parte dell'acqua calda sanitaria (ACS) condominiale. Un architetto potrà affiancare gli acquirenti per fornire soluzioni alle necessità di ciascuna famiglia. Importante sottolineare la viabilità che permette l'accesso alle principali arterie di comunicazione: tangenziale, autostrada, Via Emilia ecc. Possibilità di acquistare separatamente, nell'interrato, box auto di ampie dimensioni a partire da € 37.000,00. Volendo sono ancora disponibili al[…]


