Valutazione immobiliare indipendente, accurata e gratuita
L'Opinione di Caasa® per l'appartamento in vendita a San Lazzaro di Savena a 505.000 € (cod.651bb623)
Secondo Caasa, per l'appartamento in vendita a San Lazzaro di Savena, la richiesta di 505.000 € è significativamente vantaggiosa rispetto agli annunci simili.
Analisi immobiliare
L'appartamento, situato nella zona OMI R2, è proposto in vendita a
505.000 € per una
superficie commerciale di
140 m² e quindi ad un prezzo per metro quadrato pari a
3607 €/m²
.
Tale valore
è decisamente inferiore a quello stimato da Caasa per immobili in vendita simili per tipologia, caratteristiche, classe energetica e localizzati nella stessa zona OMI, che è compreso tra
4.716 €/m² e
5.060 €/m².
La conoscenza con buona approssimazione della localizzazione dell'immobile ha consentito di utilizzare come raffronto i dati medi elaborati esattamente nella zona OMI di appertenenza (IDICE, CAMPANA (ZONA NORD VIA EMILIA) COLUNGA, BORGATELLA, COMMENDA). Inoltre, Caasa ha potuto affinare la stima anche con la conoscenza della classe energetica (A) oltre che dello stato dell'immobile (di nuova costruzione) e di alcune caratteristiche significative come il garage o la presenza dell'ascensore. In virtù di queste considerazioni i valori accettabili per l'offerta costituiscono un intervallo abbastanza limitato.
Mercato immobiliare a San Lazzaro di Savena
Per quanto riguarda più in generale la città di San Lazzaro di Savena, sono presenti al momento oltre 500 annunci per
appartamenti in vendita (meno del 5% dell'intera provincia)
e il maggior numero di annunci per questa tipologia sono relativi alla zona di Idice.
La dinamica dei prezzi in tutta la città mostra che negli ultimi 6 mesi, i prezzi per appartamenti in vendita sono
in leggero aumento (+2,86%).
NOVITÀ Il risultato che vedi dipende dai dati che siamo riusciti ad estrarre dall'annuncio: ottieni una stima più accuranta di questo immobile, inserendo dati più precisi.
N.B. L'Opinione di Caasa® è un servizio sperimentale realizzato tramite tecniche di Intelligenza Artificiale, fornito senza alcuna garanzia di correttezza e completezza. Leggi il disclaimer o segnalaci un problema.
IMMAGINI
IN SINTESI
PROPOSTO DA:
Immobiliare Marconi SRL
DESCRIZIONE
di nuova costruzione con posto auto con garage con terrazza con termocondizionamento con giardino di nuova costruzione con cucina abitabile con ascensore con riscaldamento autonomo
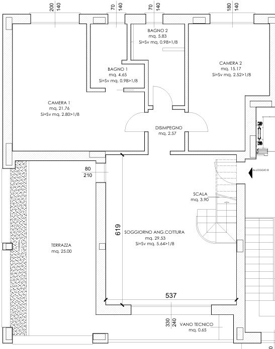
San Lazzaro di Savena. Nuovo insediamento all'interno di un complesso residenziale con ampi spazi verdi condominiali, composto da 32 unit immobiliari, con giardini privati e/o terrazze panoramiche. La posizione strategica offre una connessione con le principali arterie urbane e i servizi essenziali, garantendo nel contempo tranquillit e comfort abitativo. Tutti gli immobili saranno dotati di impianto fotovoltaico in (la sua definizione finale ancora da certificarsi). Disponibili box e posti auto scoperti. Consegna prevista da Luglio 2026. Appartamento su due livelli: al primo piano ingresso su sala con cucina a vista e accesso alla terrazza loggiata, disimpegno, due camere matrimoniali e due bagni. Al piano superiore ampio ambiente abitabile con accesso alla seconda terrazza. Volendo un'autorimessa singola, al piano terra, al costo di 30.000. Rif. 31/ML 505.000 Incaricato alla vendita il consulente immobiliare Maurizio Longati - SC9509348




