Valutazione immobiliare indipendente, accurata e gratuita
L'Opinione di Caasa® per la casa indipendente a San Giovanni in Persiceto in zona La Villa a 320.000 € (cod.65a8883d)
Secondo Caasa, per la casa indipendente in vendita in zona La Villa, la richiesta di 320.000 € è significativamente svantaggiosa rispetto agli annunci simili.
Analisi immobiliare
La casa indipendente, situata vicino a Via Cento nella zona OMI R1, è proposta in vendita a
320.000 € per una
superficie commerciale di
100 m² e quindi ad un prezzo per metro quadrato pari a
3200 €/m²
.
Tale prezzo
è meno conveniente di quello stimato da Caasa per immobili in vendita simili per tipologia, caratteristiche, classe energetica e localizzati nella stessa zona OMI, che è compreso tra
2.508 €/m² e
2.713 €/m².
La conoscenza con buona approssimazione della localizzazione dell'immobile ha consentito di utilizzare come raffronto i dati medi elaborati esattamente nella zona OMI di appertenenza (ZONA AGRICOLA TERRITORIO EXTRAURBANO) per case indipendenti (da 1.805 €/m² a 3.095 €/m²) e per case semindipendenti (da 1.805 €/m² a 3.040 €/m²). Inoltre, Caasa ha potuto affinare la stima anche con la conoscenza della classe energetica (A+) oltre che di alcune caratteristiche significative come la disponibilità di una cantina o il garage. Per questi motivi i valori accettabili per l'offerta costituiscono un intervallo abbastanza limitato.
Mercato immobiliare a San Giovanni in Persiceto
Per quanto riguarda più in generale la città di San Giovanni in Persiceto, sono presenti al momento più di 300 annunci per
case indipendenti in vendita (meno del 5% dell'intera provincia)
e il maggior numero di annunci per questa tipologia sono relativi alla zona di Decima, mentre la zona di La Villa risulta molto meno attiva considerando il numero di annunci presenti.
La richiesta media nella zona dove sorge la casa indipendente (La Villa pressi Via Cento) è pari a
2.490 €/m² e ne fa la più pregiata della città .
Relativamente alla dinamica dei prezzi, possiamo dire che negli ultimi 6 mesi i prezzi medi in tutta la città per case indipendenti in vendita sono
in leggero aumento (+2,60%).
NOVITÀ Il risultato che vedi dipende dai dati che siamo riusciti ad estrarre dall'annuncio: ottieni una stima più accuranta di questo immobile, inserendo dati più precisi.
N.B. L'Opinione di Caasa® è un servizio sperimentale realizzato tramite tecniche di Intelligenza Artificiale, fornito senza alcuna garanzia di correttezza e completezza. Leggi il disclaimer o segnalaci un problema.
IMMAGINI
IN SINTESI
PROPOSTO DA:
GABETTI SAN GIOVANNI IN PERSICETO
DESCRIZIONE
con posto auto con garage con giardino con termocondizionamento con cantina con angolo cottura con balcone con riscaldamento autonomo senza ascensore
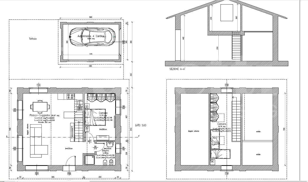
GABETTI propone, sulla strada di via Cento a pochi km da San Giovanni, villa nuova da impresa indipendente su tutti e 4 i lati, immersa in un parco di circa 4.000 mq completamente recintato, una soluzione ideale per chi desidera vivere nella tranquillità della campagna senza rinunciare alla comodità dei collegamenti con il paese. La proprietà offre ampi spazi esterni e un contesto naturale riservato, perfetto per chi ama il contatto con la natura. Il terreno che circonda l'abitazione si presta inoltre alla realizzazione di una piscina e di un pergolato, creando un ambiente ideale per pranzi all'aperto, momenti di convivialità, per chi possiede animali di piccola o grossa taglia o semplicemente per vivere appieno gli spazi esterni. La villa si sviluppa su due livelli: - al piano terra troviamo uno spazioso soggiorno con angolo cottura, un ambiente luminoso e accogliente pensato per la vita quotidiana, oltre a una camera e un bagno; - il piano primo ospita una camera soppalcata con doppio volume, spazio che dona carattere all'abitazione e che può essere interpretato in modo versatile in base alle proprie esigenze. Completano la proprietà un'autorimessa o cantina, elemento che rende la soluzione ancora più pratica e completa. Una proposta ideale per chi cerca indipendenza, ampi spazi e il fascino della vita immersa nel verde. Le immagini sono render a scopo puramente illustrativo. Rif. VLCE. Euro 320.000






