Valutazione immobiliare indipendente, accurata e gratuita
Appartamento a San Benedetto Val di Sambro in zona Monte Fredente a 39.000 € (cod.64fd8425)
Caasa non ha sufficienti informazioni per commentare l'appartamento in vendita in zona Monte Fredente - 64fd8425.
Analisi immobiliare
I dati in posseso di Caasa per quest'immobile sono insufficienti, inaffidabili o contraddittori per proporre un'analisi attendibile.
Mercato immobiliare a San Benedetto Val di Sambro
Per quanto riguarda più in generale il comune di San Benedetto Val di Sambro, sono presenti al momento circa cento annunci per
appartamenti in vendita (meno dell'1% dell'intera provincia)
e il maggior numero di annunci per questa tipologia sono relativi alla zona di Piano del Voglio, mentre nella zona di Monte Fredente è presente un numero significativamente inferiore di annunci.
La richiesta media nella zona dove sorge l'appartamento (Monte Fredente) è pari a
730 €/m² che la rende la più economica del comune .
Relativamente alla dinamica dei prezzi, possiamo dire che negli ultimi 6 mesi i prezzi medi in tutto il comune per appartamenti in vendita sono
sostanzialmente stabili (-0,86%), come per la zona di .
NOVITÀ Il risultato che vedi dipende dai dati che siamo riusciti ad estrarre dall'annuncio: ottieni una stima più accuranta di questo immobile, inserendo dati più precisi.
N.B. L'Opinione di Caasa® è un servizio sperimentale realizzato tramite tecniche di Intelligenza Artificiale, fornito senza alcuna garanzia di correttezza e completezza. Leggi il disclaimer o segnalaci un problema.
IMMAGINI
IN SINTESI
PROPOSTO DA:
STUDIO CANOVA immobili & crediti
DESCRIZIONE
di recente costruzione con cantina con terrazza con cucina abitabile con balcone di recente costruzione in asta giudiziaria
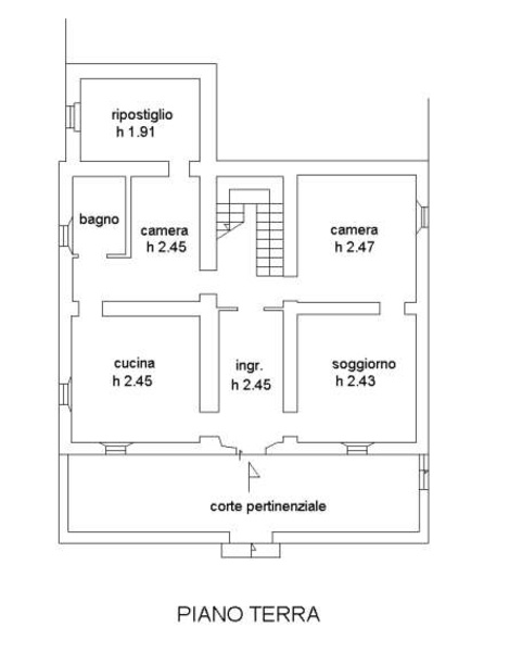
NUOVA PROPOSTA IMMOBILE DISPONIBILE Trattasi di porzione di edificio ad uso abitazione di 14,5 vani ai piani terra, primo e secondo, sita nel Comune di San Benedetto Val di Sambro, frazione Montefredente, via Faldo. L’immobile è composto da ingresso, soggiorno, cucina abitabile, due camere, bagno e ripostiglio al piano terra; disimpegno, quattro camere, bagno e balcone al primo piano; disimpegno, quattro camere e ripostiglio al secondo piano (sottotetto); cinque vani ad uso ripostiglio al piano seminterrato. Completa la proprietà un terreno agricolo di 6.362,00 mq. Soluzione ideale per chi cerca ampi spazi abitativi e una posizione tranquilla immersa nel verde. Per te la possibilità di avere un preventivo per il mutuo a condizioni vantaggiose con i nostri partner. Ulteriori dettagli, foto degli interni, planimetrie e altre info, se disponibili, saranno consultabili previo appuntamento nella sede di BOLOGNA con LORENZO che inoltre ti informerà sulle possibilità di aggiudicarti questo affare. L'immobile pubblicato al momento è sottoposto a procedura di vendita legale; Gescom srl è specializzata nella ricerca e pianificazione di investimenti immobiliari secondo innovative strategie di acquisto. Contattaci subito potrai valutare assieme a un nostro tecnico canali distinti di acquisto dell’immobile, procedura di vendita diretta senza ricorrere all’asta (d.lgs. 149/2022) e ancora stralcio immobiliare. Le informazioni sopra riportate non sostituiscono l'avviso pubblicato dal Tribunale competente ne’ l'integrale gestione da parte del delegato designato. Il testo e le specifiche indicate nella presente pagina sono generate automaticamente attraverso l'utilizzo di software e/o da A. I., Gescom srl invita a verificare le formazioni e i materiali multimediali sui canali ufficiali, declinando fin d'ora ogni responsabilità su eventuali errori o incongruenze. Gescom Italia srl leader negli stralci immobiliari e nella consulenza tecnico legale, non si occupa di attività di intermediazione imm. di cui alla legge 39/89. Cl[…]




