Valutazione immobiliare indipendente, accurata e gratuita

Appartamento in vendita a Pianoro a 210.000 € (cod.6543438a)

Caasa non ha sufficienti informazioni per commentare l'appartamento in vendita a Pianoro - 6543438a.

Analisi immobiliare
I dati in posseso di Caasa per quest'immobile sono insufficienti, inaffidabili o contraddittori per proporre un'analisi attendibile.
Mercato immobiliare a Pianoro
Per quanto riguarda più in generale la città di Pianoro, sono presenti al momento più di 200 annunci per appartamenti in vendita (meno del 5% dell'intera provincia) e il maggior numero di annunci per questa tipologia sono relativi alla zona di Livergnano.

Possiamo inoltre considerare che in tutta la città negli ultimi 6 mesi, i prezzi per appartamenti in vendita sono in sostanziale aumento (+7,27%).

NOVITÀ Il risultato che vedi dipende dai dati che siamo riusciti ad estrarre dall'annuncio: ottieni una stima più accuranta di questo immobile, inserendo dati più precisi.

N.B. L'Opinione di Caasa® è un servizio sperimentale realizzato tramite tecniche di Intelligenza Artificiale, fornito senza alcuna garanzia di correttezza e completezza. Leggi il disclaimer o segnalaci un problema.

IMMAGINI

IN SINTESI

Prezzo:
210.000 €
Superficie:
110 m²
Prezzo al m²:
1909 €/m²
Piano:
terra (SENZA ascensore)
Bagni:
2
Classe energetica:
D
IPE:
408.5 kwh/m²
Città:
Pianoro (BO)
Zona OMI:
D1 (FRAZIONE DI RASTIGNANO)
Indirizzo:
Pubblicato:
sab 5 ottobre 2024

PROPOSTO DA:

RENO IMMOBILIARE

DESCRIZIONE

da ristrutturare con giardino con termocondizionamento con angolo cottura da ristrutturare con riscaldamento autonomo senza ascensore

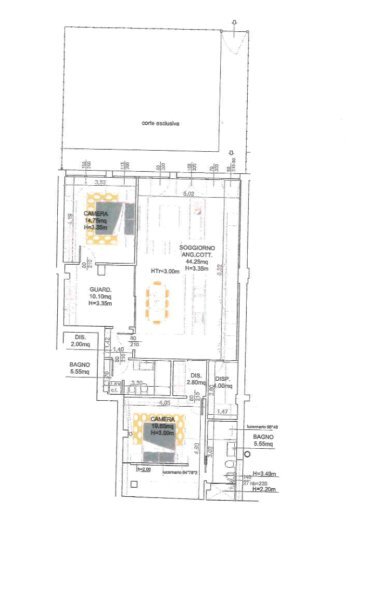
Rastignano, comodo a tutti i servizi di Bologna proponiamo in vendita laboratorio di circa mq 110, con possibilità di avere il cambio d'uso in appartamento La soluzione abitativa sarebbe composta da: ingresso indipendente su ampio soggiorno con cucina a vista, 2 camere matrimoniali, 2 bagni e cabina armadio. Inoltre dispone di un giardino esclusivo recintabile, vi è la possibilità di modificare il progetto in base alle esigenze dell'acquirente. Le spese condominiali sono pari a zero. Il prezzo richiesto è di € 210.000 e include già i costi per il cambio d'uso e progetto già depositato in comune con parere favorevole

  • immobiliare.it
  • bachecacase.com
  • bancadellecase.it
  • bilocale.it
  • idealista.it
  • oikia.it
  • trovacasa.net
  • wikicasa.it