Valutazione immobiliare indipendente, accurata e gratuita
Appartamento in vendita a Monzuno a 44.250 € (cod.6546e25e)
Caasa non ha sufficienti informazioni per commentare l'appartamento in vendita a Monzuno - 6546e25e.
Analisi immobiliare
I dati in posseso di Caasa per quest'immobile sono insufficienti, inaffidabili o contraddittori per proporre un'analisi attendibile.
Mercato immobiliare a Monzuno
Per quanto riguarda più in generale il comune di Monzuno, sono presenti al momento più di cento annunci per
appartamenti in vendita (meno dell'1% dell'intera provincia)
e il maggior numero di annunci per questa tipologia sono relativi alla zona di Vado.
Possiamo inoltre considerare che in tutto il comune negli ultimi 6 mesi, i prezzi per appartamenti in vendita sono
in leggera diminuzione (-2,78%).
NOVITÀ Il risultato che vedi dipende dai dati che siamo riusciti ad estrarre dall'annuncio: ottieni una stima più accuranta di questo immobile, inserendo dati più precisi.
N.B. L'Opinione di Caasa® è un servizio sperimentale realizzato tramite tecniche di Intelligenza Artificiale, fornito senza alcuna garanzia di correttezza e completezza. Leggi il disclaimer o segnalaci un problema.
IMMAGINI
IN SINTESI
PROPOSTO DA:
STUDIO CANOVA immobili & crediti
DESCRIZIONE
di recente costruzione con posto auto con garage con cantina di recente costruzione in asta giudiziaria con angolo cottura
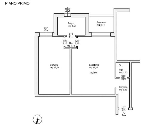
NUOVA PROPOSTA IMMOBILE LIBERO Appartamento a Monzuno (BO), in via dei Colli, situato al primo piano. L’unità abitativa è composta da ingresso, ripostiglio, soggiorno con angolo cottura, disimpegno, bagno e camera da letto. Dal soggiorno si accede a […]
