Valutazione immobiliare indipendente, accurata e gratuita
L'Opinione di Caasa® per la casa indipendente in vendita a Malalbergo in zona Altedo a 320.000 € (cod.64e85597)
Secondo Caasa, per la casa indipendente a Malalbergo in zona Altedo, la richiesta di 320.000 € è significativamente svantaggiosa rispetto agli annunci simili.
Analisi immobiliare
La casa indipendente, situata nella zona OMI R1, è proposta in vendita a
320.000 € per una
superficie commerciale di
125 m² e quindi ad un prezzo per metro quadrato pari a
2560 €/m²
.
Tale valore
è decisamente superiore a quello stimato da Caasa per immobili in vendita simili per tipologia e caratteristiche e localizzati nella stessa zona OMI, che è compreso tra
1.772 €/m² e
1.977 €/m².
Grazie alla conoscenza con buona approssimazione della localizzazione dell'immobile, è stato possibile utilizzare come raffronto i dati medi elaborati esattamente nella zona OMI di appertenenza (ZONA AGRICOLA CIRCOSTANTE IL CAPOLUOGO) per case indipendenti (da 1.295 €/m² a 2.585 €/m²) e per ville (da 1.260 €/m² a 2.505 €/m²). Anche se Caasa non è riuscita a determinare la classe energetica, ad affinare la stima ha contribuito anche la presenza di alcune caratteristiche significative come il garage. Per i motivi esposti i valori accettabili per l'offerta costituiscono un intervallo relativamente limitato.
Mercato immobiliare a Malalbergo
Per quanto riguarda più in generale il comune di Malalbergo, sono presenti al momento più di cento annunci per
case indipendenti in vendita (meno del 5% dell'intera provincia)
e il maggior numero di annunci per questa tipologia sono relativi proprio alla zona di Altedo.
Per quanto riguarda la richiesta media in zona Altedo, dove sorge la casa indipendente, essa è pari a circa
1.905 €/m² per case indipendenti in vendita.
La dinamica dei prezzi in tutto il comune mostra che negli ultimi 6 mesi, i prezzi per case indipendenti in vendita sono
in leggero aumento (+2,28%).
NOVITÀ Il risultato che vedi dipende dai dati che siamo riusciti ad estrarre dall'annuncio: ottieni una stima più accuranta di questo immobile, inserendo dati più precisi.
N.B. L'Opinione di Caasa® è un servizio sperimentale realizzato tramite tecniche di Intelligenza Artificiale, fornito senza alcuna garanzia di correttezza e completezza. Leggi il disclaimer o segnalaci un problema.
IMMAGINI
IN SINTESI
PROPOSTO DA:
Gabetti Franchising Altedo
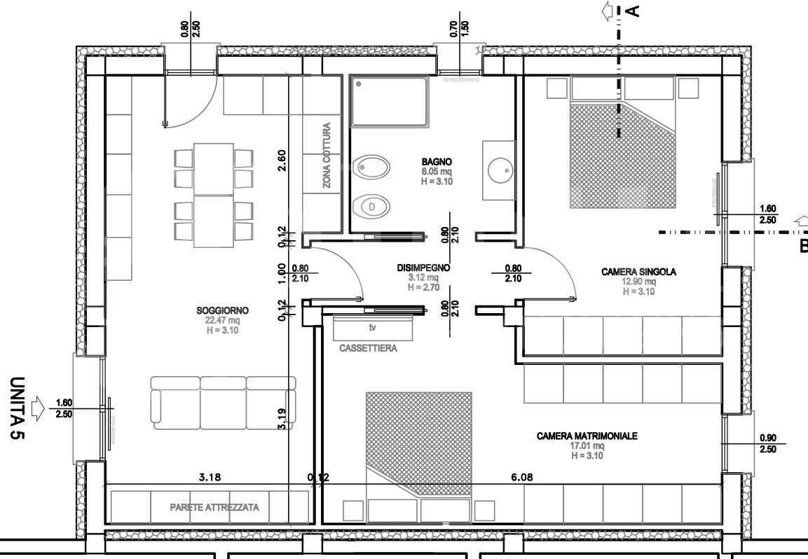
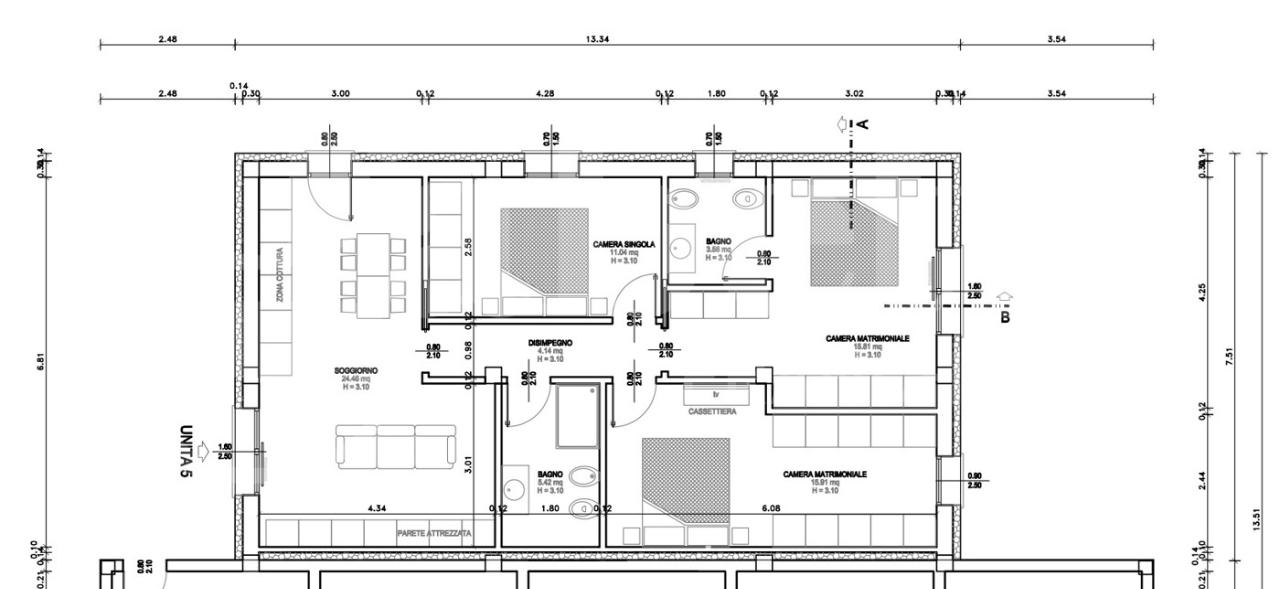
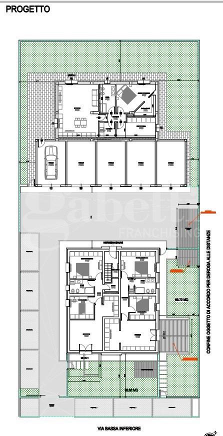
DESCRIZIONE
con garage con posto auto con giardino
ALTEDO: Ecco la casa che tutti cercano! Alle porte del paese, in via Bassa Inferiore, comoda monofamiliare interamente al piano terra, con giardino privato, autorimessa e posto auto di proprietà. La metratura realizzabile dell'abitazione è di circa 100 mq, la progettazione COMPLETAMENTE PERSONALIZZABILE, che vogliate 3 camere e 2 bagni, una cabina armadio, uno studio con accesso privato dall'esterno, non ci sono limiti (se non la sagoma esterna) per poter realizzare la casa dei VOSTRI SOGNI! Un giardino privato che affaccia i piena campagna, a Ovest, è pronto a regalarvi tramonti da sogno. Completano la proprietà un pratico posto auto vicino all'ingresso e un'autorimessa collegata al giardino e volendo collegabile all'abitazione. Questa soluzione rappresenta la scelta ideale per chiunque desideri vivere in una casa indipendente, immersa nella tranquillità ma a due passi da tutti i servizi. Non lasciarti sfuggire questa occasione e contattaci per organizzare una visita, gestiamo permute e ti aiutiamo a scegliere il miglior mutuo sul mercato




