Valutazione immobiliare indipendente, accurata e gratuita
L'Opinione di Caasa® per l'appartamento in vendita a Castenaso in zona Fiesso a 245.000 € (cod.65225ed4)
Secondo Caasa, per l'appartamento in vendita a Castenaso in zona Fiesso, la richiesta di 245.000 € è equilibrata rispetto agli annunci simili.
Analisi immobiliare
L'appartamento è proposto in vendita a
245.000 € per una
superficie commerciale di
68 m² e quindi ad un prezzo per metro quadrato pari a
3602 €/m²
.
Questo valore
è in linea con quello stimato da Caasa per immobili in vendita simili per tipologia, caratteristiche, classe energetica e zona, che è compreso tra
3.410 €/m² e
3.615 €/m².
Considerata la posizione dell'appartamento si sono utilizzati in raffronto i valori medi nelle zone limitrofe e particolarmente le richieste in vendita per appartamenti in zona Fiesso (da 2.360 €/m² a 3.360 €/m²) e per uffici in zona Fiesso (da 1.850 €/m² a 5.260 €/m²). Ad affinare la stima ha contribuito anche la classe energetica (A) oltre alla conoscenza dello stato dell'immobile (di nuova costruzione) e di alcune caratteristiche significative come il garage. Per questi motivi è possibile ottenere un intervallo di valori accettabili per l'offerta relativamente limitato.
Mercato immobiliare a Castenaso
Per quanto riguarda più in generale la città di Castenaso, sono presenti al momento più di 200 annunci per
appartamenti in vendita (meno del 5% dell'intera provincia)
e il maggior numero di annunci per questa tipologia sono relativi alla zona di Villanova, mentre la zona di Fiesso risulta molto meno attiva considerando il numero di annunci presenti.
La richiesta media nella zona dove sorge l'appartamento (Fiesso) è pari a
2.765 €/m², molto vicina ai valori della zona Villanova che sono i più alti della città .
Per quanto riguarda la dinamica dei prezzi, negli ultimi 6 mesi i prezzi medi in tutta la città per appartamenti in vendita sono
in leggera diminuzione (-2,54%).
NOVITÀ Il risultato che vedi dipende dai dati che siamo riusciti ad estrarre dall'annuncio: ottieni una stima più accuranta di questo immobile, inserendo dati più precisi.
N.B. L'Opinione di Caasa® è un servizio sperimentale realizzato tramite tecniche di Intelligenza Artificiale, fornito senza alcuna garanzia di correttezza e completezza. Leggi il disclaimer o segnalaci un problema.
IMMAGINI
IN SINTESI
DESCRIZIONE
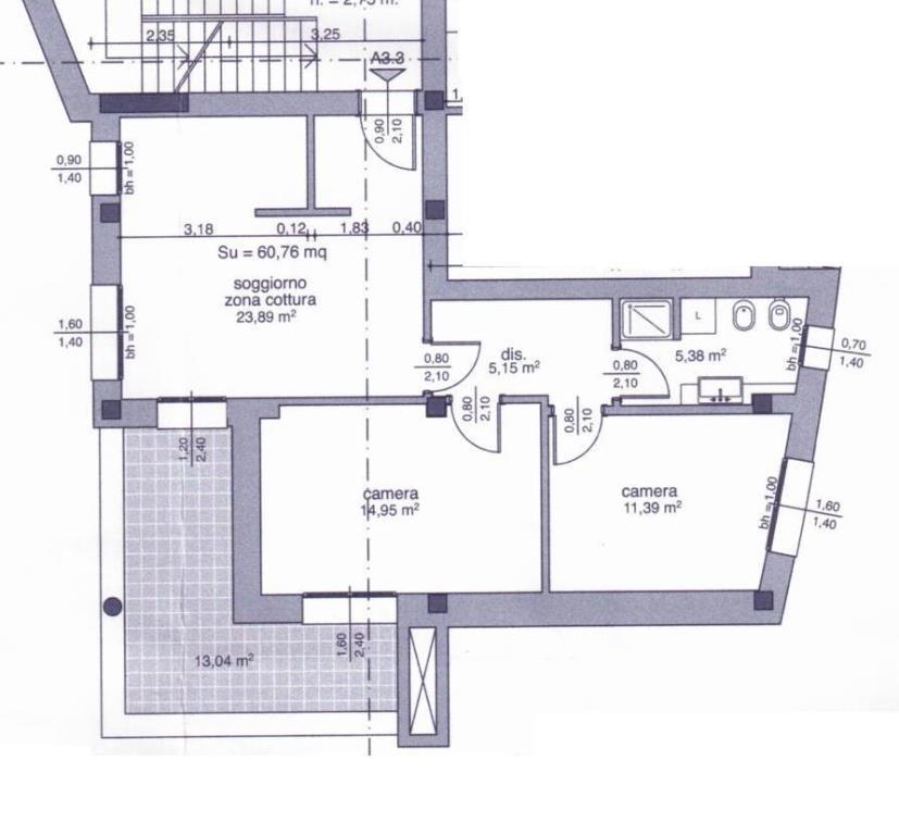
di nuova costruzione con posto auto con garage con terrazza di nuova costruzione con angolo cottura
Da Privato. Vendesi a Castenaso centro unità immobiliare, in corso di costruzione, in cosi composta: soggiorno pranzo, angolo cottura, 2 camere, bagno , terrazzo e autorimessa. Nessuna mediazione. Prezzo di listino euro 255.000 prezzo internet euro 245.000. Contatti e-mail: varano.costruzionilibero.it tel.ufficio: 051 750585

