Valutazione immobiliare indipendente, accurata e gratuita
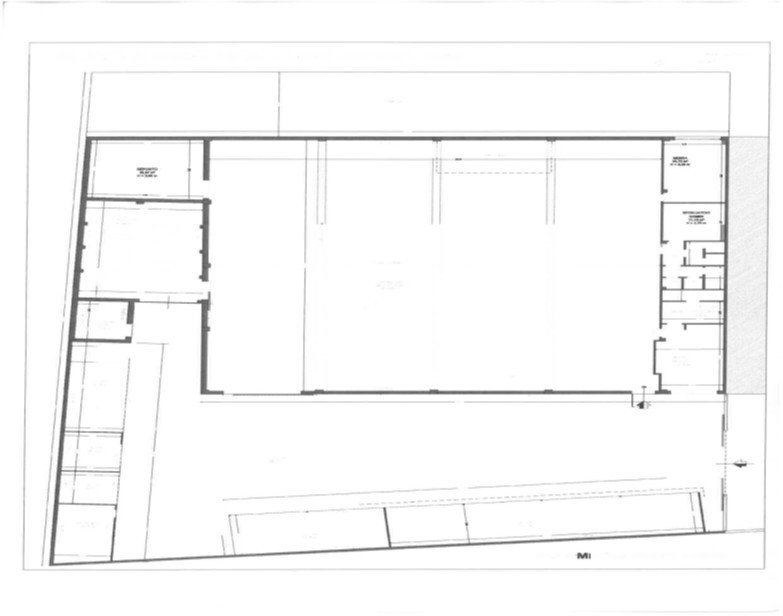
Ufficio in affitto a Castel Maggiore a 3.700 € mese (cod.656ff902)
Caasa non ha sufficienti informazioni per commentare l'ufficio in affitto a Castel Maggiore - 656ff902.
Analisi immobiliare
I dati in posseso di Caasa per quest'immobile sono insufficienti, inaffidabili o contraddittori per proporre un'analisi attendibile.
Mercato immobiliare a Castel Maggiore
Per quanto riguarda più in generale la città di Castel Maggiore, sono presenti al momento più di trenta annunci per
uffici in affitto (meno del 5% dell'intera provincia) .
Possiamo inoltre considerare che in tutta la città negli ultimi 6 mesi, i prezzi per uffici in affitto sono
in forte aumento (+40,22%).
NOVITÀ Il risultato che vedi dipende dai dati che siamo riusciti ad estrarre dall'annuncio: ottieni una stima più accuranta di questo immobile, inserendo dati più precisi.
N.B. L'Opinione di Caasa® è un servizio sperimentale realizzato tramite tecniche di Intelligenza Artificiale, fornito senza alcuna garanzia di correttezza e completezza. Leggi il disclaimer o segnalaci un problema.
IMMAGINI
IN SINTESI
PROPOSTO DA:
TecnoFondiaria
