Valutazione immobiliare indipendente, accurata e gratuita
Ufficio a Casalecchio di Reno in zona Garibaldi/La Mutua (cod.6562dd3e)
Caasa non ha sufficienti informazioni per commentare l'ufficio a Casalecchio di Reno Garibaldi/La Mutua - 6562dd3e.
Analisi immobiliare
I dati in posseso di Caasa per quest'immobile sono insufficienti, inaffidabili o contraddittori per proporre un'analisi attendibile.
Mercato immobiliare a Casalecchio di Reno
Per quanto riguarda più in generale la città di Casalecchio di Reno, sono presenti al momento più di cinquanta annunci per
uffici in vendita (meno del 5% dell'intera provincia)
e il maggior numero di annunci per questa tipologia sono relativi proprio alla zona di Garibaldi/La Mutua.
Per quanto riguarda la richiesta media in zona Garibaldi/La Mutua, dove sorge l'ufficio, essa è pari a circa
2.975 €/m² per uffici in vendita.
Possiamo inoltre considerare che in tutta la città negli ultimi 6 mesi, i prezzi per uffici in vendita sono
in forte aumento (+15,28%).
NOVITÀ Il risultato che vedi dipende dai dati che siamo riusciti ad estrarre dall'annuncio: ottieni una stima più accuranta di questo immobile, inserendo dati più precisi.
N.B. L'Opinione di Caasa® è un servizio sperimentale realizzato tramite tecniche di Intelligenza Artificiale, fornito senza alcuna garanzia di correttezza e completezza. Leggi il disclaimer o segnalaci un problema.
IMMAGINI
IN SINTESI
PROPOSTO DA:
STUDIO IMMOBILIARE BOSCHI
DESCRIZIONE
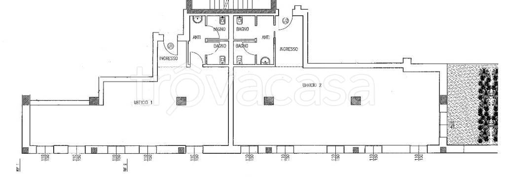
di nuova costruzione con posto auto con garage di nuova costruzione
CASALECCHIO DI RENO NELL'ESCLUSIVA VIA GARIBALDI proponiamo IN FASE DI REALIZZAZIONE NUOVO EDIFICIO SIGNORILE CON TECNOLOGIE ALL'AVANGUARDIA E FINITURE DI PREGIO IN ANTISISMICA, IMPIANTO DI ALLARME etc , Proponiamo UFFICI open space di VARIE METRATURE eventualmente unibili a partire da mq 75 ------ volendo Garage siamo disponibili a fissare appuntamenti in ufficio per ulteriori informazioni, per visionare i progetti ed i capitolati dell'intervento contattare IMMOBILIARE BOSCHI 051592094 OPPURE AL 337582793 prezzo di vendita Euro trattative riservate PER MAGGIORI INFO STUDIO IMMOBILIARE BOSCHI 051/592094 WWW.IMMOBILIAREBOSCHI.COM

