Valutazione immobiliare indipendente, accurata e gratuita
Negozio in vendita a Casalecchio di Reno a 440.000 € (cod.653ff3fc)
Caasa non ha sufficienti informazioni per commentare il negozio in vendita a Casalecchio di Reno - 653ff3fc.
Analisi immobiliare
I dati in posseso di Caasa per quest'immobile sono insufficienti, inaffidabili o contraddittori per proporre un'analisi attendibile.
Mercato immobiliare a Casalecchio di Reno
Per quanto riguarda più in generale la città di Casalecchio di Reno, sono presenti al momento circa cento annunci per
negozi in vendita (meno del 5% dell'intera provincia)
e il maggior numero di annunci per questa tipologia sono relativi alla zona di Garibaldi/La Mutua.
Vedi altre informazioni direttamente su
Mercato-Immobiliare.info
NOVITÀ Il risultato che vedi dipende dai dati che siamo riusciti ad estrarre dall'annuncio: ottieni una stima più accuranta di questo immobile, inserendo dati più precisi.
N.B. L'Opinione di Caasa® è un servizio sperimentale realizzato tramite tecniche di Intelligenza Artificiale, fornito senza alcuna garanzia di correttezza e completezza. Leggi il disclaimer o segnalaci un problema.
IMMAGINI
IN SINTESI
PROPOSTO DA:
STUDIO IMMOBILIARE BOSCHI
DESCRIZIONE
di nuova costruzione di nuova costruzione
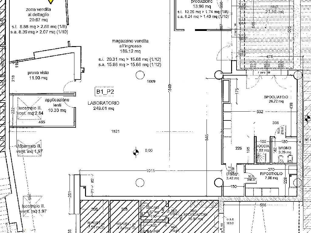
CDATA[VENDESI ----- CASALECCHIO DI RENO IN CENTRO DIREZIONALE , Laboratorio MQ 320 AL PIANO TERRA , AMPIE VETRINE , DOPPIA ENTRATA , AMPIA AREA CORTILIVA CONDOMINIALE DEDICATA AI PARCHEGGI -- PRESENZA DI CANNA FUMARIA già predisposto per lavorazione pasta fresca --- Euro 440.000,00 ----- ACE C 53 PER MAGGIORI INFO STUDIO IMMOBILIARE BOSCHI 051/592094 WWW.IMMOBILIAREBOSCHI.COM

