Valutazione immobiliare indipendente, accurata e gratuita
Villa in vendita a Calderara di Reno in zona Castello di Campeggi a 105.000 € (cod.6388052a)
Caasa non ha sufficienti informazioni per commentare la villa a Calderara di Reno Castello di Campeggi - 6388052a.
Analisi immobiliare
I dati in posseso di Caasa per quest'immobile sono insufficienti, inaffidabili o contraddittori per proporre un'analisi attendibile.
Mercato immobiliare a Calderara di Reno
Per quanto riguarda più in generale il comune di Calderara di Reno, sono presenti al momento più di cinquanta annunci per
ville in vendita (meno del 5% dell'intera provincia)
e il maggior numero di annunci per questa tipologia sono relativi alla zona di Longara, mentre la zona di Castello di Campeggi risulta molto meno attiva considerando il numero di annunci presenti.
Possiamo inoltre considerare che in tutto il comune negli ultimi 6 mesi, i prezzi per ville in vendita sono
in aumento (+3,77%).
NOVITÀ Il risultato che vedi dipende dai dati che siamo riusciti ad estrarre dall'annuncio: ottieni una stima più accuranta di questo immobile, inserendo dati più precisi.
N.B. L'Opinione di Caasa® è un servizio sperimentale realizzato tramite tecniche di Intelligenza Artificiale, fornito senza alcuna garanzia di correttezza e completezza. Leggi il disclaimer o segnalaci un problema.
IMMAGINI
IN SINTESI
DESCRIZIONE
con posto auto con garage con cantina con angolo cottura
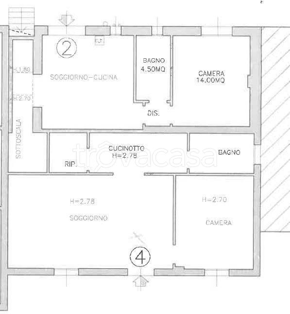
Calderara di Reno - loc. Castel Campeggi Ti proponiamo palazzina composta da 6 unità. 2 bilocali, 3 trilocali e 1 quadrilocale. Prezzi a partire da 105.000 € App. 2: PT. Ingresso su soggiorno con cucina, bagno e camera matrimoniale. App. 4: PT. Ingresso indipendente su soggiorno, cucinotto, ripostiglio, bagno e camera da letto. App. 7: P1. Ingresso su cucina, piccolo disimpegno, bagno e camera matrimoniale. 4 App. 8 P1. Ingresso su piccolo disimpegno cucina, soggiorno, 2 camere matrimoniali e bagno. App. 11 P2. Ingresso su cucina, bagno e 2 camere matrimoniali. App. 12. P2. Ingresso su disimpegno, bagno, zona giorno con cucina e 2 camere matrimoniali. Possibilità di acquistare il garage per ogni unità immobiliare al prezzo di 17.000 € cad. Classe Energetica: F


