Valutazione immobiliare indipendente, accurata e gratuita

Appartamento in affitto a Calderara di Reno in zona Bargellino a 850 € mese (cod.64ee147e)

Caasa non ha sufficienti informazioni per commentare l'appartamento a Calderara di Reno in zona Bargellino - 64ee147e.

Analisi immobiliare
I dati in posseso di Caasa per quest'immobile sono insufficienti, inaffidabili o contraddittori per proporre un'analisi attendibile.
Mercato immobiliare a Calderara di Reno
Per quanto riguarda più in generale il comune di Calderara di Reno, sono presenti al momento più di dieci annunci per appartamenti in affitto (meno dell'1% dell'intera provincia) e il maggior numero di annunci per questa tipologia sono relativi alla zona di Lippo, mentre nella zona di Bargellino è presente un numero significativamente inferiore di annunci.

NOVITÀ Il risultato che vedi dipende dai dati che siamo riusciti ad estrarre dall'annuncio: ottieni una stima più accuranta di questo immobile, inserendo dati più precisi.

N.B. L'Opinione di Caasa® è un servizio sperimentale realizzato tramite tecniche di Intelligenza Artificiale, fornito senza alcuna garanzia di correttezza e completezza. Leggi il disclaimer o segnalaci un problema.

IMMAGINI

IN SINTESI

Prezzo:
850 € mese
Superficie:
220 m²
Prezzo al m²:
3,9/mese €/m²
Piano:
terra
Bagni:
2
Classe energetica:
D
IPE:
41.8 kwh/m²
Città:
Calderara di Reno (BO)
Zona OMI:
D9 (ZONA PRODUTTIVA BARGELLINO)
Indirizzo:
Pubblicato:
gio 2 ottobre 2025

PROPOSTO DA:

logo IMMOBILIARE GIOVETTI

IMMOBILIARE GIOVETTI

VIALE PEPOLI, 78, Bologna (BO)

Vai ai contatti

DESCRIZIONE

con termocondizionamento con posto auto

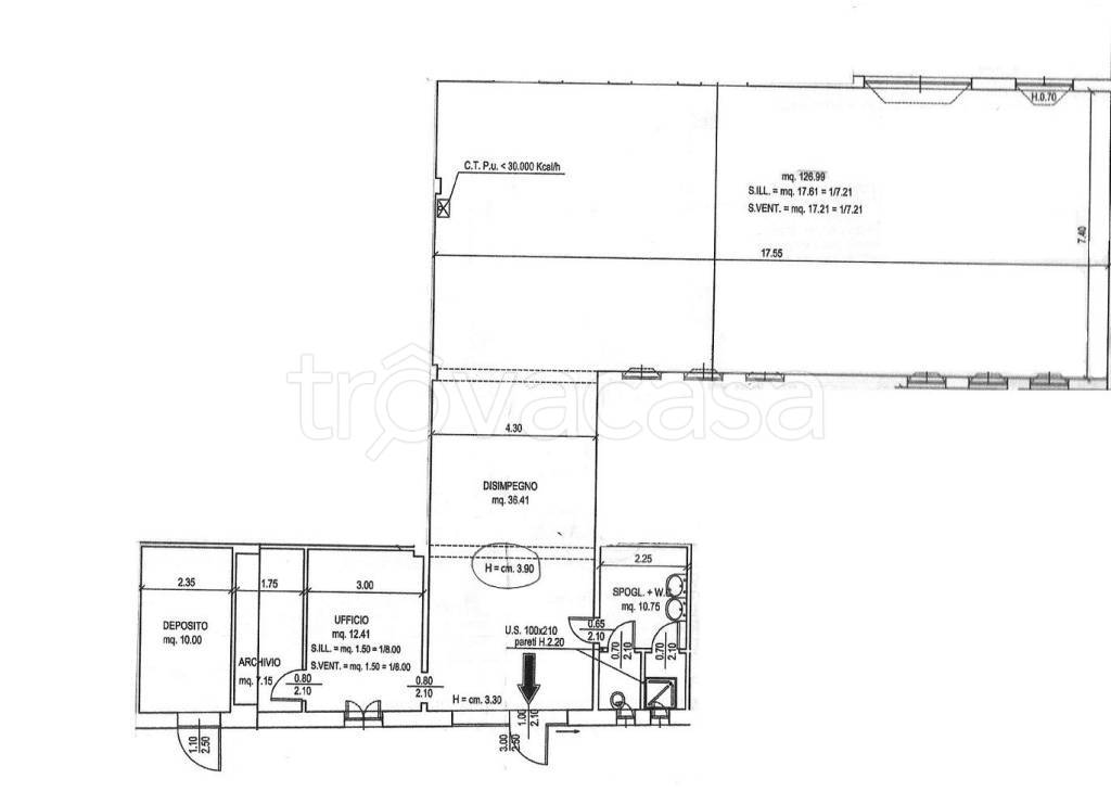
Bargellino (ad. ze aeroporto): capannone laboratorio-magazzino, categoria catastale C/3, in buone condizioni, posto al piano terra, entrata da cancello motorizzato tramite ampio corsello comune, con circa 6/7 posti auto disponibili. Ingresso indipendente con accesso da portone largo 3,15 mt. con altezza 3,50 mt. Composizione: spazioso ingresso, open space di circa 130 mq. calpestabili altezza soffitti min. 3,30 metri max 4,50 metri, due bagni, vano spogliatoio, piccolo ufficio con annessi due comodi vani uso archivio, con entrata indipendente, molto arioso e luminoso, ottima disposizione degli ambienti, riscaldamento ad aria con pompa di calore, libero da DICEMBRE 2025. Verranno richieste referenze, tre mesi di deposito + tre mesi fideiussione bancaria o 6 mesi di deposito totali

  • immobiliare.it
  • trovacasa.net