Valutazione immobiliare indipendente, accurata e gratuita
L'Opinione di Caasa® per l'appartamento in vendita a Bologna in zona Santo Stefano a 720.000 € (cod.659c6eaa)
Secondo Caasa, per l'appartamento a Bologna in zona Santo Stefano, la richiesta di 720.000 € è significativamente vantaggiosa rispetto agli annunci simili.
Analisi immobiliare
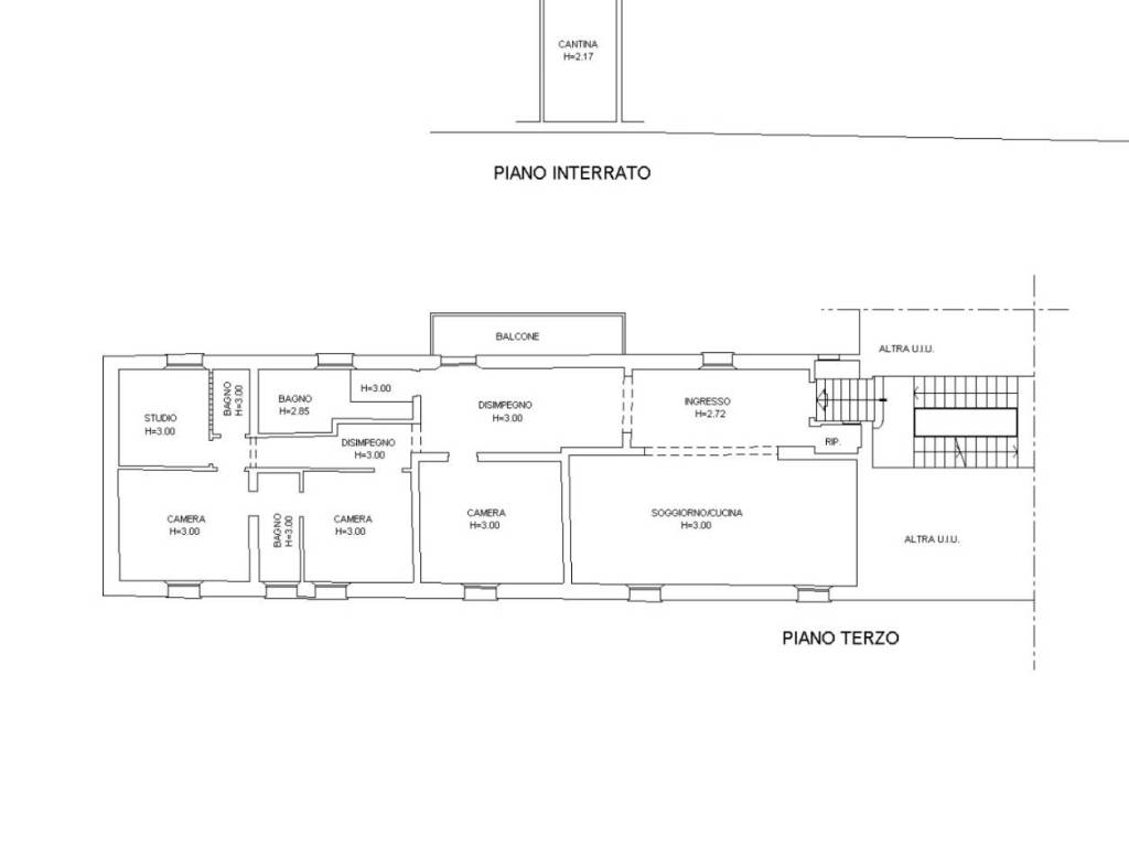
L'appartamento, situato nei pressi di Via San Mamolo nella zona OMI D16, è proposto in vendita (da POLISIMMOBILIARE) a
720.000 € per una
superficie commerciale di
162 m² e quindi ad un prezzo per metro quadrato pari a
4444 €/m²
.
Questo prezzo
è più vantaggioso di quello stimato da Caasa per immobili in vendita simili per tipologia e caratteristiche e localizzati nella stessa zona OMI, che è compreso tra
5.099 €/m² e
5.477 €/m².
Grazie alla conoscenza con buona approssimazione della localizzazione dell'immobile, è stato possibile utilizzare come raffronto i dati medi elaborati esattamente nella zona OMI di appertenenza (PEDECOLLINARE) per appartamenti (da 3.465 €/m² a 5.920 €/m²) e per loft (da 3.395 €/m² a 6.315 €/m²). Anche se Caasa non è riuscita a determinare la classe energetica, ad affinare la stima ha contribuito anche lo stato dell'immobile (di recente ristrutturazione). Per queste ragioni l'intervallo dei valori accettabili per l'offerta è relativamente limitato.
Mercato immobiliare a Bologna
Per quanto riguarda più in generale la città di Bologna, sono presenti al momento ben oltre 3.000 annunci per
appartamenti in vendita (quasi il 40% dell'intera provincia)
e il maggior numero di annunci per questa tipologia sono relativi alla zona di Centro Storico, mentre nella zona di Santo Stefano è presente un numero significativamente inferiore di annunci.
La richiesta media nella zona dove sorge l'appartamento (Santo Stefano pressi Via San Mamolo) è pari a
4.905 €/m² e ne fa la più pregiata della città .
Possiamo inoltre considerare che in tutta la città negli ultimi 6 mesi, i prezzi per appartamenti in vendita sono
in leggero aumento (+2,65%).
NOVITÀ Il risultato che vedi dipende dai dati che siamo riusciti ad estrarre dall'annuncio: ottieni una stima più accuranta di questo immobile, inserendo dati più precisi.
N.B. L'Opinione di Caasa® è un servizio sperimentale realizzato tramite tecniche di Intelligenza Artificiale, fornito senza alcuna garanzia di correttezza e completezza. Leggi il disclaimer o segnalaci un problema.
