Valutazione immobiliare indipendente, accurata e gratuita
Appartamento in vendita a Bologna in zona Savena a 330.000 € (cod.65468ff8)
Caasa non ha sufficienti informazioni per commentare l'appartamento in vendita a Bologna in zona Savena - 65468ff8.
Analisi immobiliare
I dati in posseso di Caasa per quest'immobile sono insufficienti, inaffidabili o contraddittori per proporre un'analisi attendibile.
Mercato immobiliare a Bologna
Per quanto riguarda più in generale la città di Bologna, sono presenti al momento ben oltre 3.000 annunci per
appartamenti in vendita (quasi il 40% dell'intera provincia)
e il maggior numero di annunci per questa tipologia sono relativi alla zona di Centro Storico, mentre nella zona di Savena è presente un numero significativamente inferiore di annunci.
La richiesta media nella zona dove sorge l'appartamento (Savena pressi Via Bezzecca) è pari a
3.715 €/m², molto vicina ai valori della zona Santo Stefano che sono i più alti della città .
Per quanto riguarda la dinamica dei prezzi, negli ultimi 6 mesi i prezzi medi in tutta la città per appartamenti in vendita sono
in aumento (+4,92%).
NOVITÀ Il risultato che vedi dipende dai dati che siamo riusciti ad estrarre dall'annuncio: ottieni una stima più accuranta di questo immobile, inserendo dati più precisi.
N.B. L'Opinione di Caasa® è un servizio sperimentale realizzato tramite tecniche di Intelligenza Artificiale, fornito senza alcuna garanzia di correttezza e completezza. Leggi il disclaimer o segnalaci un problema.
IMMAGINI
IN SINTESI
DESCRIZIONE
con cantina con terrazza con balcone con ascensore con giardino con cucina abitabile
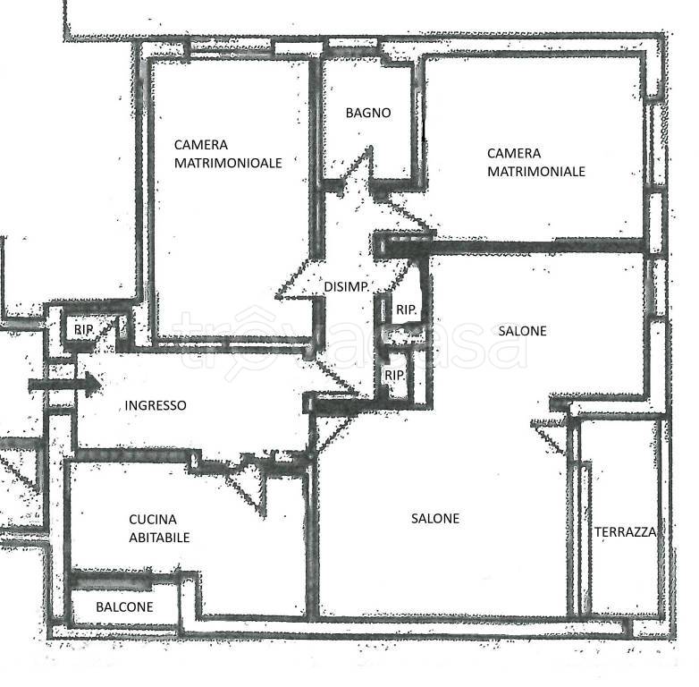
ZONA SAVENA - Via Bezzecca 2 - appartamento al 5° piano con ascensore senza barriere architettoniche, libero subito. Possibilità di realizzare terza camera. Composizione attuale: ingresso, cucina abitabile, doppia sala, doppio balcone di cui uno semi abitabile, disimpegno, 3 ripostigli, 2 camere matrimoniali, bagno finestrato. Completa la proprietà una cantina al piano interrato. Volendo, con pagamento a parte, 2 autorimesse singole al piano interrato, ad € 25.000,00 caduna. è stato realizzato il cappotto all'edificio di recente. Ampio giardino condominiale. Richiesta € 330.000 Rif. Veronesi 340 4531199


