Valutazione immobiliare indipendente, accurata e gratuita
L'Opinione di Caasa® per la casa indipendente in vendita a Bentivoglio a 600.000 € (cod.65993e5d)
Secondo Caasa, per la casa indipendente in vendita a Bentivoglio, la richiesta di 600.000 € è significativamente svantaggiosa rispetto agli annunci simili.
Analisi immobiliare
La casa indipendente, situata nella zona OMI R2, è proposta in vendita a
600.000 € per una
superficie commerciale di
215 m² e quindi ad un prezzo per metro quadrato pari a
2790 €/m²
.
Tale prezzo
è meno conveniente di quello stimato da Caasa per immobili in vendita simili per tipologia e caratteristiche, presenti nella stessa zona, che è compreso tra
2.348 €/m² e
2.545 €/m².
Presa in considerazione la posizione della casa indipendente sono stati utilizzati come raffronto i valori medi nelle zone limitrofe . Caasa non è stata in grado di determinare la classe energetica, ma ad affinare la stima hanno contribuito però anche lo stato dell'immobile (di nuova costruzione) e la presenza di alcune caratteristiche significative come la climatizzazione o il garage. Per queste considerazioni i valori possibili per l'offerta costituiscono un intervallo relativamente ampio.
Mercato immobiliare a Bentivoglio
Per quanto riguarda più in generale il comune di Bentivoglio, sono presenti al momento circa cento annunci per
case indipendenti in vendita (meno del 5% dell'intera provincia) .
Relativamente alla dinamica dei prezzi, possiamo dire che negli ultimi 6 mesi i prezzi medi in tutto il comune per case indipendenti in vendita sono
in calo (-4,70%).
NOVITÀ Il risultato che vedi dipende dai dati che siamo riusciti ad estrarre dall'annuncio: ottieni una stima più accuranta di questo immobile, inserendo dati più precisi.
N.B. L'Opinione di Caasa® è un servizio sperimentale realizzato tramite tecniche di Intelligenza Artificiale, fornito senza alcuna garanzia di correttezza e completezza. Leggi il disclaimer o segnalaci un problema.
IMMAGINI
IN SINTESI
PROPOSTO DA:
Affiliato Iconacasa Bologna Bolognina
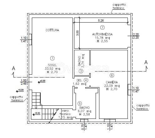
DESCRIZIONE
di nuova costruzione con posto auto con garage con giardino di nuova costruzione con termocondizionamento di recente ristrutturazione con climatizzazione
Scopri questa splendida soluzione abitativa di circa 215 mq calpestabili, situata a Bentivoglio. La posizione è strategica e funzionale, ben collegata allo svincolo autostradale e alla Trasversale di Pianura, oltre che ai principali servizi della zona. Una proposta ideale per famiglie che cercano indipendenza, ampi spazi e massima efficienza energetica. L’immobile, oggetto di una profonda riqualificazione, si sviluppa su tre livelli con ambienti pensati per il massimo comfort. I PUNTI DI FORZA DI QUESTA SOLUZIONE: - Massima Indipendenza: Libera su quattro lati, senza spese condominiali e con ampi spazi privati. - Logistica Strategica: Collegamenti rapidi con le principali arterie stradali (Autostrada e Trasversale di Pianura) per spostamenti veloci verso Bologna e Ferrara. - Efficienza Energetica al Top: Grazie al cappotto termico e alla pompa di calore da 11 kW, per un comfort elevato e costi di gestione minimi. - Spazi Generosi e Versatili: Oltre 210 mq abitativi più un sottotetto di 113 mq da destinare a ogni tua esigenza (hobby, deposito, studio). - Tecnologia Moderna: Riscaldamento a pavimento e impianto di climatizzazione con 5 split già inclusi nel progetto. - Personalizzazione Totale: Scegli i materiali e le finiture per rendere la casa specchio del tuo stile. CARATTERISTICHE DELL'IMMOBILE: PIANO TERRA: * Soggiorno con Cucina a vista (33 mq) * Camera matrimoniale (22 mq) * Bagno e Vano Tecnico PIANO PRIMO: * Secondo Soggiorno/Pranzo (28 mq) * Tre ampie camere da letto * Bagno padronale e Cabina armadio PIANO SOTTOTETTO: * Ampio vano pluriuso/deposito di circa 113 mq. ESTERNI: Completa la proprietà un comodo garage che garantisce praticità e sicurezza per il parcheggio o come spazio di deposito. TECNOLOGIA E IMPIANTI: - L’immobile garantisce un elevato risparmio energetico grazie a dotazioni di ultima generazione: - Riscaldamento a pavimento a bassa temperatura su tutta la superficie abitabile. - Pompa di calore Aria/Acqua (11 kW) con accumulo sanitario integrato. - Climatizzazione multisplit (5 un[…]

