Valutazione immobiliare indipendente, accurata e gratuita
Casa indipendente in vendita ad Anzola dell'Emilia a 510.000 € (cod.658377bf)
Caasa non ha sufficienti informazioni per commentare la casa indipendente in vendita ad Anzola dell'Emilia - 658377bf.
Analisi immobiliare
I dati in posseso di Caasa per quest'immobile sono insufficienti, inaffidabili o contraddittori per proporre un'analisi attendibile.
Mercato immobiliare ad Anzola dell'Emilia
Per quanto riguarda più in generale il comune di Anzola dell'Emilia, sono presenti al momento circa cento annunci per
case indipendenti in vendita (meno del 5% dell'intera provincia)
e il maggior numero di annunci per questa tipologia sono relativi alla zona di Ponte Samoggia.
La dinamica dei prezzi in tutto il comune mostra che negli ultimi 6 mesi, i prezzi per case indipendenti in vendita sono
in sostanziale calo (-5,03%).
NOVITÀ Il risultato che vedi dipende dai dati che siamo riusciti ad estrarre dall'annuncio: ottieni una stima più accuranta di questo immobile, inserendo dati più precisi.
N.B. L'Opinione di Caasa® è un servizio sperimentale realizzato tramite tecniche di Intelligenza Artificiale, fornito senza alcuna garanzia di correttezza e completezza. Leggi il disclaimer o segnalaci un problema.
IMMAGINI
IN SINTESI
PROPOSTO DA:
AGENZIA IMMOBILIARE BARONI
DESCRIZIONE
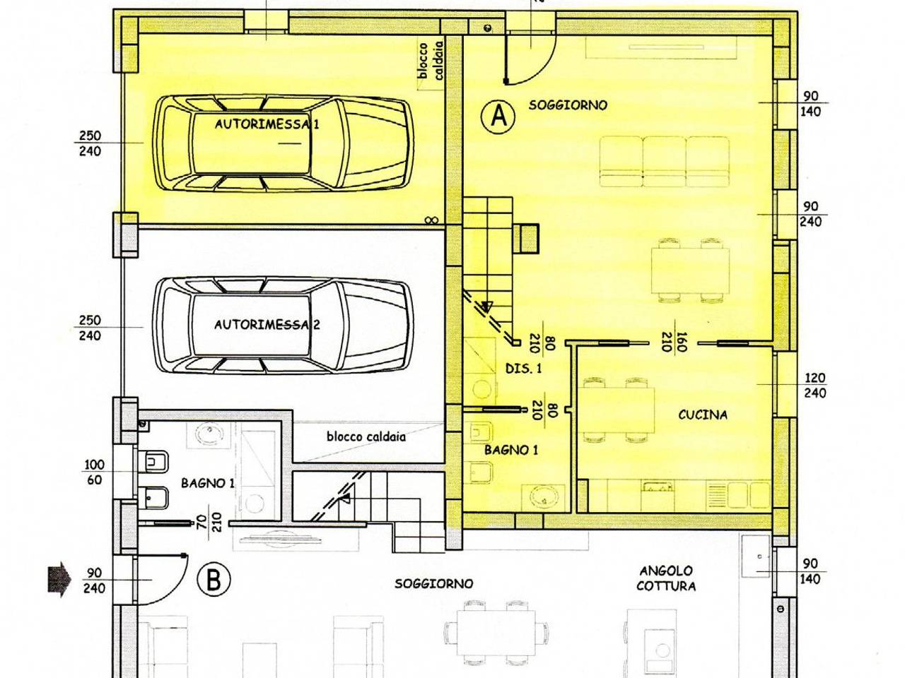
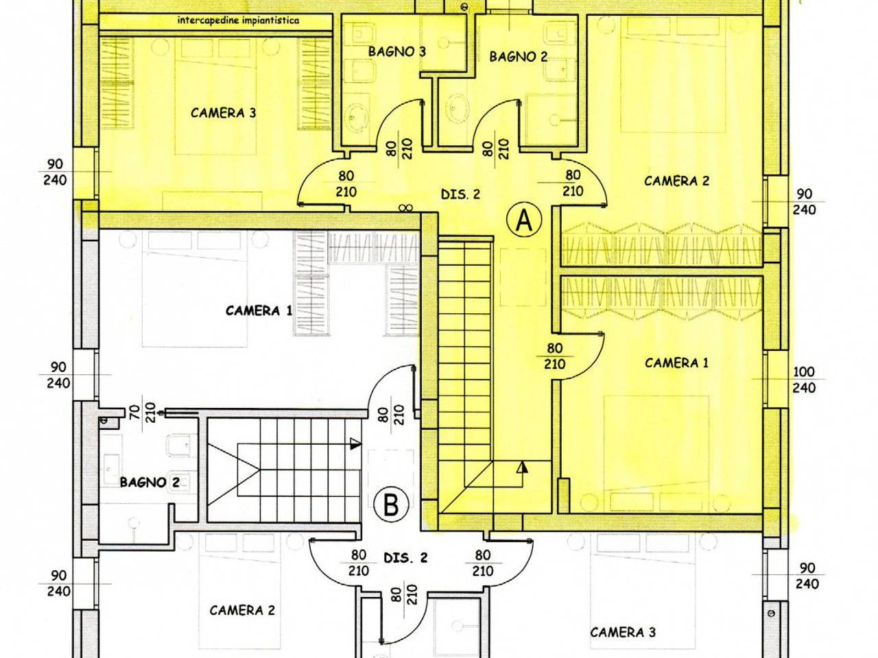
di nuova costruzione con posto auto con termocondizionamento con garage con giardino con riscaldamento autonomo con cucina abitabile di nuova costruzione
Anzola Emilia nella campagna a 2 km dal paese, bellissima ed ampia porzione di villa bifamiliare in costruzione ad alta efficienza energetica con riscaldamento autonomo a pavimento, isolamento termico con muri "a cappotto" e isolamento acustico, tetto in legno a vista ventilato e coibentato, impianto fotovoltaico, impianto di climatizzazione e predisposizione impianto anti-intrusione. All'interno la casa è composta da un piano terra con: salone, cucina abitabile separata oppure a vista, bagno e garage; piano primo con 3 camere e 2 bagni. All'esterno giardino privato di mq.380 circa con 2 posti auto. Consegna Settembre 2027. PER ULTERIORI DETTAGLI O VISITE IN CANTIERE CHIAMACI ALLO 051734835

