N.B. Tutti le informazioni immobiliari sono fornite senza alcuna garanzia. Leggi il disclaimer.
Appartamento in vendita a Lambrugo PREMIUM
- prezzo medio appartamento in zona OMI B2 : 1532 €/m²
- prezzo medio appartamento a Lambrugo : 1422 €/m²
Vendesi negozio a Lambrugo via Roma
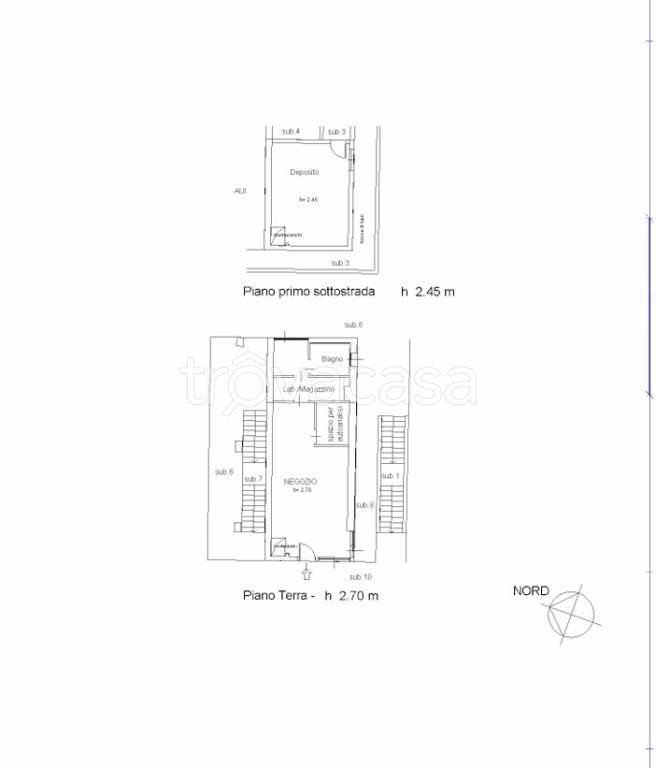
negozio
Questo ampio spazio commerciale si trova nel pieno centro del paese, e, di conseguenza, ha una notevole visibilità, sia perché affaccia sulla strada principale sia perché la posizione ad angolo e le otto vetrine permettono una veloce individuazione della struttura. Si trova in Via Roma, strada che attrav […]
LEGGI ANCORA
Negozio in vendita a Lambrugo via Roma, 3
negozio 45.000 €
In posizione strategica, con affaccio sulla piazza del mercato settimanale e di forte passaggio, proponiamo in vendita locale commerciale a reddito, attualmente locato ad attività di bar, con contratto in essere. Lo spazio commerciale ha a disposizione un bagno per disabili con relativo antibagno. Locale […]
LEGGI ANCORA
Negozio in vendita a Lambrugo
negozio 100.000 €
IN VENDITA – NEGOZIO IN CENTRO PAESE, In posizione centrale e di passaggio, si propone negozio al piano terra di circa 71 mq, con ampie vetrine che garantiscono ottima luminosità e visibilità. L’immobile è composto da: spazioso locale principale open space, bagno, scala interna di collegamento al piano p […]
LEGGI ANCORA
Appartamento in vendita a Lambrugo
negozio 160.000 €
State cercando un ampio appartamento che allo stesso tempo non abbia lavori da fare? Che sia in una zona tranquilla e senza spese condominiali? FERMATI QUI ALLORA CHE ABBIAMO LA SOLUZIONE PER VOI!!! La Tempocasa di Lurago d'Erba vi propone in vendita un appartamento al secondo ed ultimo piano nel centro […]
LEGGI ANCORA
- prezzo medio appartamento in zona OMI B2 : 1532 €/m²
- prezzo medio appartamento a Lambrugo : 1422 €/m²
Appartamento in vendita a Lambrugo
negozio 125.000 €
Rif: NEG1 - State cercando un ampio negozio? Oppure una soluzione spaziosa con autorimessa? FERMATEVI E COMPONETE IL NOSTRO NUMERO!!! La Tempocasa di Lurago d'Erba vi propone in vendita un negozio con vendita diretta al pubblico in centro a Lambrugo. La seguente soluzione è predisposta al cambio di desti […]
LEGGI ANCORA
- prezzo medio appartamento in zona OMI B2 : 1532 €/m²
- prezzo medio appartamento a Lambrugo : 1422 €/m²
Appartamento in vendita a Lambrugo PREMIUM
- prezzo medio appartamento in zona OMI B2 : 1532 €/m²
- prezzo medio appartamento a Lambrugo : 1422 €/m²
trivano in vendita a Lambrugo
negozio 139.000 €
In zona comoda e servita di Lambrugo, nelle immediate vicinanze di scuole, stazione ferroviaria e principali servizi commerciali come farmacia, tabacchi, pizzeria, negozi di abbigliamento, parcheggio libero, bar ecc. si propone in vendita un’interessante soluzione in piccola corte ordinata e pulita compo […]
LEGGI ANCORA
- prezzo medio appartamento in zona OMI B2 : 1532 €/m²
- prezzo medio trivano in zona OMI B2 : 1523 €/m²
negozio in vendita a Lambrugo
negozio 55.000 €
Locale commerciale a reddito in vendita 130 mq Via Roma 3 a Lambrugo. In posizione strategica, con affaccio sulla piazza del mercato settimanale e di forte passaggio, proponiamo in vendita locale commerciale a reddito, attualmente locato ad attività di ristorante pizzeria, con contratto in essere. […]
LEGGI ANCORA
vendita trilocale 740mq
negozio 310.000 €
vendita trilocale 740mq Lambrugo Como Lombardia proponiamo artigianale di circa mq. 610 posto su unarea privata di mq. 150000 con appartamento sovrastante di circa mq.130 da rimodernare. si compone di 5 locali con cucina e bagno. lampio accesso consente carico e scarico anche per i camion. prezzo euro. 3 […]
LEGGI ANCORA
- prezzo medio appartamento a Lambrugo : 1422 €/m²




