Valutazione immobiliare indipendente, accurata e gratuita

Appartamento in vendita a Salerno a 135.000 € (cod.64e556e7)

Caasa non ha sufficienti informazioni per commentare l'appartamento in vendita a Salerno - 64e556e7.

Analisi immobiliare
I dati in posseso di Caasa per quest'immobile sono insufficienti, inaffidabili o contraddittori per proporre un'analisi attendibile.
Mercato immobiliare a Salerno
Per quanto riguarda più in generale la città di Salerno, sono presenti al momento ben oltre mille annunci per appartamenti in vendita (quasi il 20% dell'intera provincia) e il maggior numero di annunci per questa tipologia sono relativi alla zona di Centro Città.

La dinamica dei prezzi in tutta la città mostra che negli ultimi 6 mesi, i prezzi per appartamenti in vendita sono in deciso aumento (+8,98%).

NOVITÀ Il risultato che vedi dipende dai dati che siamo riusciti ad estrarre dall'annuncio: ottieni una stima più accuranta di questo immobile, inserendo dati più precisi.

N.B. L'Opinione di Caasa® è un servizio sperimentale realizzato tramite tecniche di Intelligenza Artificiale, fornito senza alcuna garanzia di correttezza e completezza. Leggi il disclaimer o segnalaci un problema.

IMMAGINI

IN SINTESI

Prezzo:
135.000 €
Superficie:
85 m²
Prezzo al m²:
1588 €/m²
Piano:
n.d. (con ascensore)
Bagni:
4
Classe energetica:
n.d.
Città:
Salerno (SA)
Zona OMI:
B13 (CAMILLO SORGENTE, CARMINE, P.ZZA SAN FRANCESCO, PIETRO DA ACERNO LATO S, E. CATERINA, S.BARATTA, FOCE IRNO, A.CARELLA)
Indirizzo:
Pubblicato:
mar 21 gennaio 2025

PROPOSTO DA:

Studio Salernum srl

DESCRIZIONE

di recente ristrutturazione con ascensore di recente ristrutturazione di recente costruzione

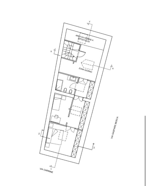
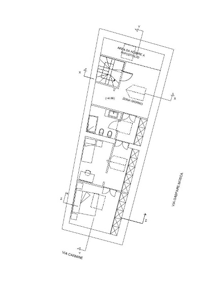
CARMINE, SALERNO, A Pochi passi da tutti i servizi, all'interno di un palazzo signorile degli inizi del 900 recentemente ristrutturato non provvisto di ascensore, proponiamo in vendita mansarda di 80mq allo stato grezzo. Altezza massima 3mt, altezza minima 1.33 mt. Classe Energetica: G

  • immobiliare.it
  • yescasa.it