Valutazione immobiliare indipendente, accurata e gratuita
Appartamento in vendita a Polla a 55.650 € (cod.658acd80)
Caasa non ha sufficienti informazioni per commentare l'appartamento in vendita a Polla - 658acd80.
Analisi immobiliare
I dati in posseso di Caasa per quest'immobile sono insufficienti, inaffidabili o contraddittori per proporre un'analisi attendibile.
Mercato immobiliare a Polla
Per quanto riguarda più in generale il comune di Polla, sono presenti al momento più di dieci annunci per
appartamenti in vendita (meno dell'1% dell'intera provincia) .
Vedi altre informazioni direttamente su
Mercato-Immobiliare.info
NOVITÀ Il risultato che vedi dipende dai dati che siamo riusciti ad estrarre dall'annuncio: ottieni una stima più accuranta di questo immobile, inserendo dati più precisi.
N.B. L'Opinione di Caasa® è un servizio sperimentale realizzato tramite tecniche di Intelligenza Artificiale, fornito senza alcuna garanzia di correttezza e completezza. Leggi il disclaimer o segnalaci un problema.
IMMAGINI
IN SINTESI
PROPOSTO DA:
Centro Aste Franchising
DESCRIZIONE
in asta giudiziaria con cantina con termocondizionamento con caminetto
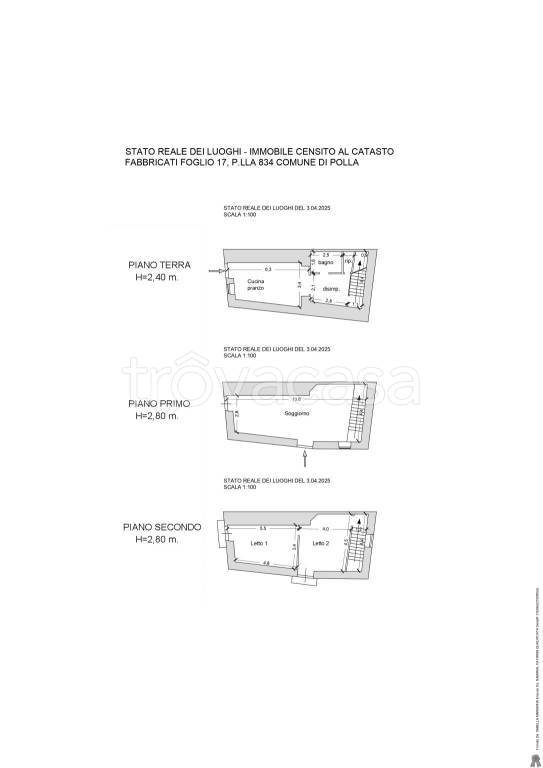
Asta appartamento a Polla (SA) Via Giardini, 84035 Polla SA, Italia Immobile per civile abitazione ubicato nel Comune di Polla alla Via Vico Giardini Vico A, costituito da piano terra, piano primo, piano secondo e sottotetto, catastalmente censito al […]
