Valutazione immobiliare indipendente, accurata e gratuita
Appartamento in vendita a Montecorvino Rovella a 43.875 € (cod.65856edb)
Caasa non ha sufficienti informazioni per commentare l'appartamento in vendita a Montecorvino Rovella - 65856edb.
Analisi immobiliare
I dati in posseso di Caasa per quest'immobile sono insufficienti, inaffidabili o contraddittori per proporre un'analisi attendibile.
Mercato immobiliare a Montecorvino Rovella
Per quanto riguarda più in generale il comune di Montecorvino Rovella, sono presenti al momento più di cento annunci per
appartamenti in vendita (meno del 5% dell'intera provincia)
e il maggior numero di annunci per questa tipologia sono relativi alla zona di San Martino.
La dinamica dei prezzi in tutto il comune mostra che negli ultimi 6 mesi, i prezzi per appartamenti in vendita sono
in leggero aumento (+2,38%).
NOVITÀ Il risultato che vedi dipende dai dati che siamo riusciti ad estrarre dall'annuncio: ottieni una stima più accuranta di questo immobile, inserendo dati più precisi.
N.B. L'Opinione di Caasa® è un servizio sperimentale realizzato tramite tecniche di Intelligenza Artificiale, fornito senza alcuna garanzia di correttezza e completezza. Leggi il disclaimer o segnalaci un problema.
IMMAGINI
IN SINTESI
PROPOSTO DA:
Immobili all'Asta
DESCRIZIONE
da ristrutturare con cantina in asta giudiziaria da ristrutturare senza ascensore con angolo cottura
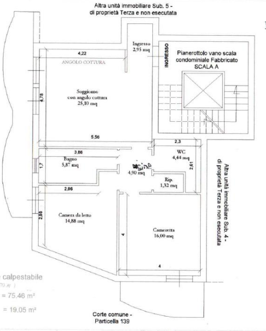
APPARTAMENTO ALL'ASTA IN VIA ACQUOLELLA, M. ROVELLA (SA) Si propone il diritto di piena proprietà su immobile ad uso residenziale sito in via acquolella 2, nel comune di Montecorvino Rovella (SA). Nello specifico si tratta di un appartamento al piano terra, composto da: - ingresso - salone con angolo cottura - disimpegno - camera da letto - bagno - ripostiglio soppalcato. L'unità risulta avere una superficie di circa 76mq. DATI CATASTALI L'unità immobiliare risulta identificata al catasto fabbricati come segue: foglio n. 9 particella n. 139 subalterno n. 6, Categoria A/2, classe 5, consistenza catastale 4.5 vani, rendita catastale euro 325,37. CHI SIAMO Immobiliallasta.it aiuta le persone a comprare casa all'asta e migliorare la qualità della loro vita senza correre rischi, grazie ad una piattaforma specializzata in aste immobiliari sviluppata intorno alle vere esigenze di chi cerca casa all'asta e ad un team di 30 professionisti esperti dedicato, che ti guida passo passo in un acquisto sicuro e certificato da una tripla garanzia sull'immobile e sul servizio. A differenza delle agenzie troverai: + Varietà: gestiamo migliaia di immobili ogni mese + Tranquillità: tripla garanzia che ti tutela da ogni rischio sull'acquisto Alcuni risultati oggettivi nell'ultimo anno e mezzo: - 8.600 immobili gestiti - +500 clienti portati all'asta - +200 case aggiudicate, per un valore totale di 15 milioni Contattaci subito per parlare con uno dei nostri consulenti che ti aiuterà a trovare la tua casa all'asta senza correre rischi




