Valutazione immobiliare indipendente, accurata e gratuita
L'Opinione di Caasa® per l'appartamento in vendita a Cava de' Tirreni a 118.000 € (cod.65a54b99)
Secondo Caasa, per l'appartamento in vendita a Cava de' Tirreni, la richiesta di 118.000 € è significativamente vantaggiosa rispetto agli annunci simili.
Analisi immobiliare
L'appartamento, situato nella zona OMI D4, è proposto in vendita a
118.000 € per una
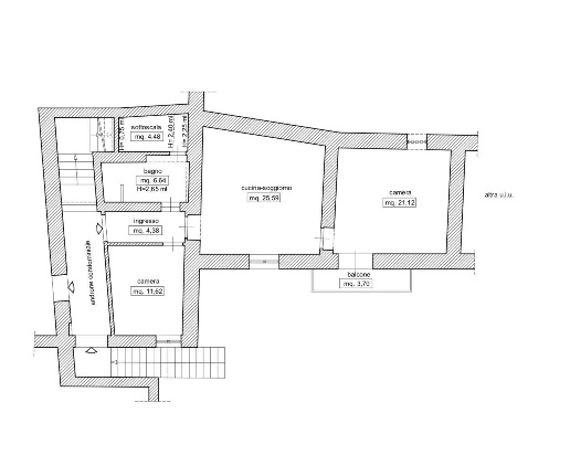
superficie commerciale di
75 m² e quindi ad un prezzo per metro quadrato pari a
1573 €/m²
.
Tale prezzo
è più conveniente di quello stimato da Caasa per immobili in vendita simili per tipologia, caratteristiche, classe energetica e localizzati nella stessa zona OMI, che è compreso tra
1.968 €/m² e
2.165 €/m².
La conoscenza con buona approssimazione della localizzazione dell'immobile ha consentito di utilizzare come raffronto i dati medi elaborati esattamente nella zona OMI di appertenenza (S.LUCIA - S. ANNA - STARZA - PREGIATO - PREGIATELLO - S. PIETRO - S.S. ANNUNZ...). Inoltre, Caasa ha potuto affinare la stima anche con la conoscenza della classe energetica (G) oltre che dello stato dell'immobile (di recente ristrutturazione). Per queste considerazioni i valori accettabili per l'offerta costituiscono un intervallo abbastanza limitato.
Mercato immobiliare a Cava de' Tirreni
Per quanto riguarda più in generale la città di Cava de' Tirreni, sono presenti al momento quasi 500 annunci per
appartamenti in vendita (meno del 5% dell'intera provincia)
e il maggior numero di annunci per questa tipologia sono relativi alla zona di Centro Storico / Scacciaventi.
Relativamente alla dinamica dei prezzi, possiamo dire che negli ultimi 6 mesi i prezzi medi in tutta la città per appartamenti in vendita sono
sostanzialmente stabili (+1,07%).
NOVITÀ Il risultato che vedi dipende dai dati che siamo riusciti ad estrarre dall'annuncio: ottieni una stima più accuranta di questo immobile, inserendo dati più precisi.
N.B. L'Opinione di Caasa® è un servizio sperimentale realizzato tramite tecniche di Intelligenza Artificiale, fornito senza alcuna garanzia di correttezza e completezza. Leggi il disclaimer o segnalaci un problema.
IMMAGINI
IN SINTESI
PROPOSTO DA:
FRIMM Roccapiemonte
DESCRIZIONE
di recente ristrutturazione con terrazza di recente ristrutturazione con balcone di nuova costruzione con cortile
In Via N. Pastore, a soli 900 metri dal centro, proponiamo un appartamento completamente ristrutturato e pronto da abitare. La soluzione ideale per chi cerca la pace di un contesto residenziale senza rinunciare ai servizi. • Composizione: soggiorno con cucina a vista, camera matrimoniale con balcone e affaccio libero, cameretta/studio, bagno e vano lavanderia. • Accessori: caratteristico cortile condominiale. • Stato: ristrutturazione integrale recente, nessun lavoro necessario. • I vantaggi: facilità di parcheggio, zona silenziosa e consegna immediata. La scelta perfetta per giovani coppie o per un investimento sicuro. Contattaci per altre informazioni e/o per fissare un appuntamento. EPI: 376,43 kwh/m2 anno

