Valutazione immobiliare indipendente, accurata e gratuita
Appartamento in vendita a Castelcivita a 77.379 € (cod.656fcccc)
Caasa non ha sufficienti informazioni per commentare l'appartamento in vendita a Castelcivita - 656fcccc.
Analisi immobiliare
I dati in posseso di Caasa per quest'immobile sono insufficienti, inaffidabili o contraddittori per proporre un'analisi attendibile.
Mercato immobiliare a Castelcivita
Per quanto riguarda più in generale il comune di Castelcivita, sono presenti al momento più di dieci annunci per
appartamenti in vendita (meno dell'1% dell'intera provincia) .
NOVITÀ Il risultato che vedi dipende dai dati che siamo riusciti ad estrarre dall'annuncio: ottieni una stima più accuranta di questo immobile, inserendo dati più precisi.
N.B. L'Opinione di Caasa® è un servizio sperimentale realizzato tramite tecniche di Intelligenza Artificiale, fornito senza alcuna garanzia di correttezza e completezza. Leggi il disclaimer o segnalaci un problema.
IMMAGINI
IN SINTESI
PROPOSTO DA:
Centro Aste Franchising
DESCRIZIONE
di nuova costruzione in asta giudiziaria di nuova costruzione
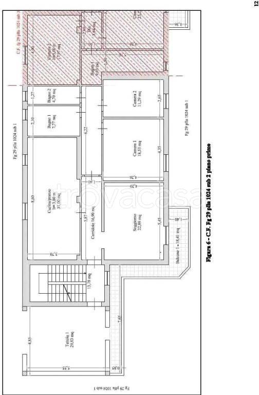
Asta fabbricati civile abitazione a Castelcivita (SA) 84020 San Tommaso SA, Italia Compendio immobiliare sito a Castelcivita in Localita' San Tommaso, Contrada Serra costituito da fabbricato per civile abitazione composto da due appartamenti con rela […]
